| |||||
FORUM HardWare.fr

Discussions

Vie pratique

[Topic Unik]Construire / rénover sa maison ; Bientôt sur steam| Auteur | Sujet : [Topic Unik]Construire / rénover sa maison ; Bientôt sur steam |
|---|---|
TMadMac | Reprise du message précédent : Vieille maison à colombages, dans fondation, sous-sol en terre., humidité visible par endroit dans les murs, sous le niveau du sol de plus de la moitié de la hauteur. Nous avons remis de nouveau le sol, fait un hérisson non ventilé d'environ 15cms en cassant grossièrement des tuiles (celles qui étaient sur le toit avant de refaire la charpente), un film géotextile, une dalle de 10cms à base de chaux (pas de chanvre et pas de liège non plus), et collé à la chaux en finition des dalles de grès *pas* ceram surtout (8mm en 40*40 je crois). Le sous-sol est légèrement ventilé : 2 ouvertures équivalentes à trou diamètre 200mm. ... Et depuis 15 ans aucun problème d' humidité. Il y a pourtant le sèche-linge qui "charge" pas mal la pièce. Mais j'ai 1 regard et aussi une partie laissée beurre avec juste 10cms de graviers (projet de cave à vins ... Toujours pas faite) et je ne constate aucun problème que ce soit hiver ou été. PS: utilisation de la chaux NHL2 de chez Boehm, lecture : "Techniques et pratique de la chaux" École d' Avignon - eyrolles Message cité 1 fois Message édité par TMadMac le 08-11-2025 à 07:34:57 --------------- Where's The Cue Ball Going?! |
Publicité | Posté le 08-11-2025 à 07:30:22 ![]() ![]() |
thoulisse_bernard Duos habet et bene pendentes |
libussa |
|
Daphne kernel panic |
|
Publicité | Posté le 08-11-2025 à 16:38:29 ![]() ![]() |
Zaib3k |
|
Roger01 |
|
neo world |
|
mathew77 Neutre |
|
Aline BOQS Alsacobéquois. |
--------------- -=* Feedback de Liline *=- _._ -=* Ptit bazar à Liline *=- |
booking |
|
nasdak | Dans ma baraque dont l'elec a été refaite y'a 10 ou 15 ans, les prises sont sur disjoncteur 25A et l'éclairage sur 16A. |
nasdak |
Message cité 1 fois Message édité par nasdak le 08-11-2025 à 20:24:40 |
mikamika | refaite par géo trouvetou ? |
jma64 Electricien chez MOI 8-)) | .
--------------- . c'est tout |
ryoo |
|
Aline BOQS Alsacobéquois. |
--------------- -=* Feedback de Liline *=- _._ -=* Ptit bazar à Liline *=- |
jpegfr | Je pose ici le lien du topic d'à côté, sur notre questionnement par rapport au plan de notre futur maison. --------------- 100% des gagnants ont joué |
nasdak |
|
jpegfr |
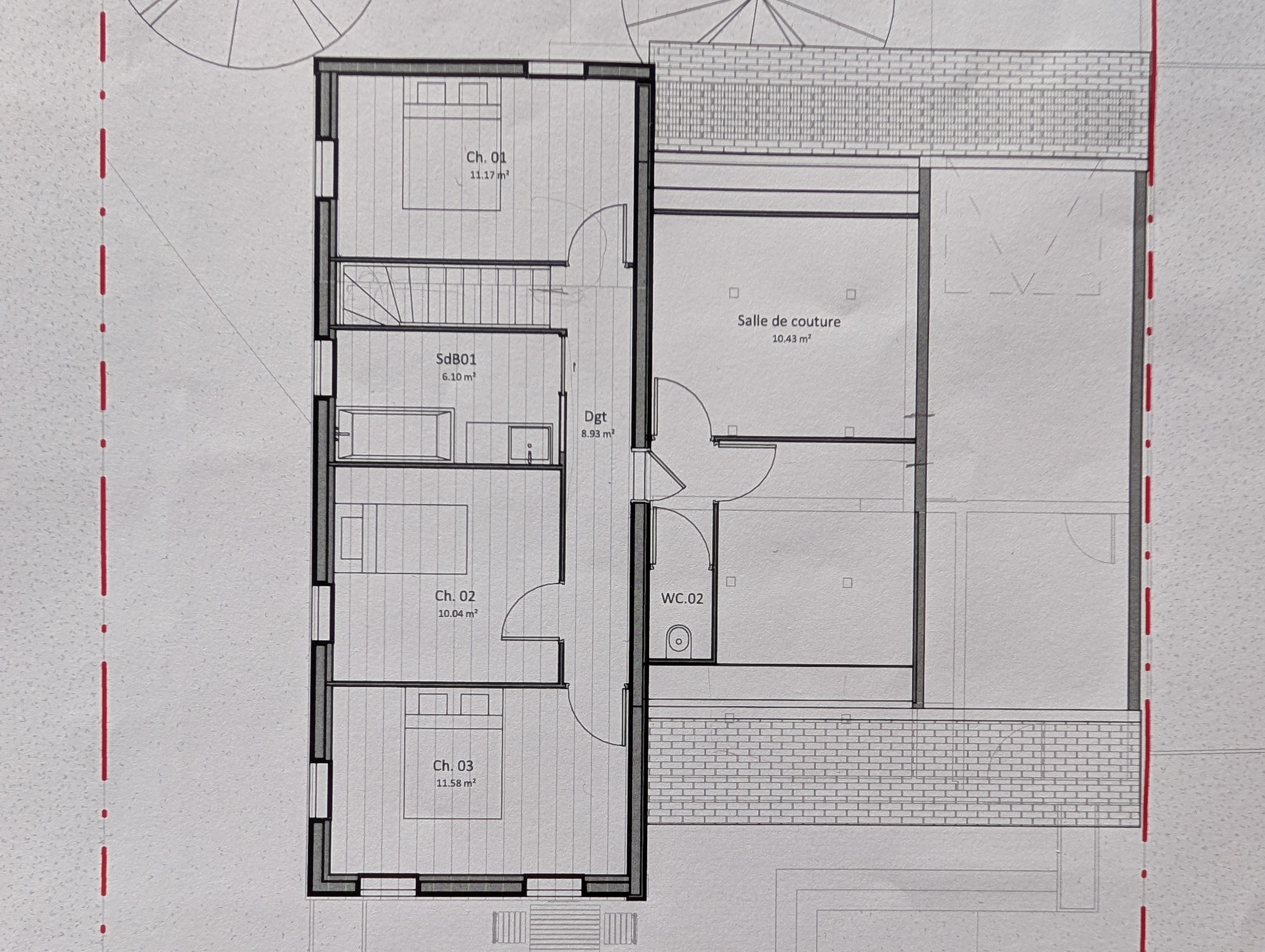
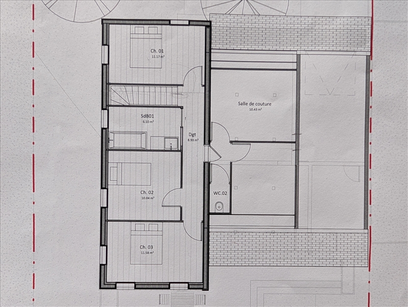
La buanderie, on là conserve telle qu'elle. Pour moi le problème est au niveau de l'escalier, je le trouve mal situé....en réfléchissant de notre côté on se disait pourquoi pas le faire débuter un peu plus dans l'entrée dans le bureau du plan un peu au niveau de la fenêtre. Je pensais les volumes assez grands pour pas être top embêté avec des contraintes de tailles mais au final pas simple Pour l'étage oui il me semblait avoir mis les plans mais les voici. --------------- 100% des gagnants ont joué |
mathew77 Neutre |
|
ryoo |
|
neo world |
|
neo world |
Message cité 1 fois Message édité par neo world le 09-11-2025 à 14:52:00 |
Roger01 |
|
booking |
|
booking |
|
Morningkill | Cette vidéo me fait croire que je me suis fait arnaqué en achetant de l'inertie pour mes radiateurs électriques ..
|
multikill |
Un radiateur électrique standard moderne c'est quand même souvent à inertie. Tu n'as pas du perdre beaucoup d'argent. |
neo world |
|
Profil supprimé | Posté le 10-11-2025 à 09:34:17 ![]()
|
jpegfr |
--------------- 100% des gagnants ont joué |
kimmeria |
J'ai regardé la première minute. Il écrit sur son tableau : "1kWh = 1kW". Après, le fond de la vidéo est bon : il n'y a pas de radiateur magique. Message édité par kimmeria le 10-11-2025 à 11:34:46 |
Publicité | Posté le ![]() ![]() |

FORUM HardWare.fr

Discussions

Vie pratique

[Topic Unik]Construire / rénover sa maison ; Bientôt sur steam| Sujets relatifs | |
|---|---|
| Soupes maison : vos recettes | Electricité a la maison: gros problème |
| Recherche déco pour maison | Faire du sport à la maison ? |
| Faire construire au lieu d'acheter ? | Cadeau à construire? |
| Maison d'édition ? | Cherche Maison a louer sur Limoges |
| [archi] Prix d'une maison en monomur terre cuite ? | maison de retraite!! |
| Plus de sujets relatifs à : [Topic Unik]Construire / rénover sa maison ; Bientôt sur steam | |


