| |||||
FORUM HardWare.fr

Discussions

Vie pratique

[Topic Unik]Construire / rénover sa maison ; Bientôt sur steam| Auteur | Sujet : [Topic Unik]Construire / rénover sa maison ; Bientôt sur steam |
|---|---|
Profil supprimé | Posté le 04-07-2023 à 09:51:15 ![]() Reprise du message précédent :
Sur l'isolation ça n'a pas changé oui, on vend toujours les mêmes références. |
Publicité | Posté le 04-07-2023 à 09:51:15 ![]() ![]() |
Digaboy |
|
GenyaB Shit fucking game. |
|
Philibear Orbital Bacon |
Message cité 1 fois Message édité par Philibear le 04-07-2023 à 10:00:52 --------------- Mon topok ACH/VENTE: http://forum.hardware.fr/forum2.ph [...] ost=572744 |
leraturbain |
Message cité 1 fois Message édité par leraturbain le 04-07-2023 à 12:44:48 |
aleholi |
--------------- monocycle.info |
silkr |
|
zephiel Apologiste de la paresse |
--------------- Parler à un con, c'est comme se masturber avec une râpe à fromage : beaucoup de souffrance pour peu de résultat. |
polichu faut voir | Le contenu de ce message a été effacé par son auteur |
Publicité | Posté le 04-07-2023 à 11:49:52 ![]() ![]() |
leraturbain |
|
ryoo |
|
gloinfred |
|
edhelas 'Pendant' nous… le déluge ? | Suivit des travaux pour moi
Y'a même pas un mois y'avait que les plots bétons. Le bois ça va vite ! Ceux qui trouvent où c'est gagnent mon respect Message cité 6 fois Message édité par edhelas le 04-07-2023 à 14:15:54 --------------- ╯°□°)╯︵ ┻━┻ |
Daphne kernel panic |
paracyber |
--------------- Quand on veut on peut, quand on peut on doit" © Bonaparte |
edhelas 'Pendant' nous… le déluge ? |
Message cité 3 fois Message édité par edhelas le 04-07-2023 à 14:25:00 --------------- ╯°□°)╯︵ ┻━┻ |
paracyber |
--------------- Quand on veut on peut, quand on peut on doit" © Bonaparte |
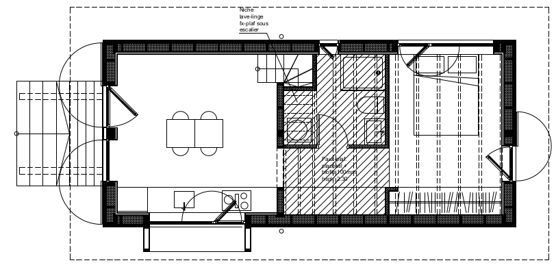
Daphne kernel panic | Je fais actuellement les plans d'une tiny house mais je suis limitée à 20m², je transpire un peu |
etienn |
--------------- Flickr Instagram SiteWeb |
paracyber |
--------------- Quand on veut on peut, quand on peut on doit" © Bonaparte |
kida |
--------------- .::| Feedback |::. |
Batman-Fr powered by caféine |
Le double face n'a pour vocation que de te simplifier la mise en place en effet. Plus vite tu fixes définitivement, mieux c'est --------------- Tout ou rien mais rien que tout ! feed-back : http://forum.hardware.fr/forum2.ph [...] ost=121391 |
Namless Doutez de tout |
--------------- Feedback d'achats-ventes |
Perfector Memento mori |
Ce serait pas le Mont Aiguille dans les nuages au fond J'aime bien en tout cas Message cité 1 fois Message édité par Perfector le 04-07-2023 à 14:45:00 --------------- Randos |
edhelas 'Pendant' nous… le déluge ? |
--------------- ╯°□°)╯︵ ┻━┻ |
berlo dubitatif |
Super intéressant, c'est pour une résidence principale ?
|
DrDooM |
|
leraturbain |
Message cité 2 fois Message édité par leraturbain le 04-07-2023 à 15:32:59 |
edhelas 'Pendant' nous… le déluge ? |
Message cité 4 fois Message édité par edhelas le 04-07-2023 à 15:48:21 --------------- ╯°□°)╯︵ ┻━┻ |
leraturbain |
Message édité par leraturbain le 04-07-2023 à 15:37:19 |
paracyber |
--------------- Quand on veut on peut, quand on peut on doit" © Bonaparte |
libussa |
|
Daphne kernel panic | Sans compter le prix des matériaux qui est débile depuis un an... |
DrDooM |
|
ragexen Hasta la victoria siempre |
|
kida |
--------------- .::| Feedback |::. |
ragexen Hasta la victoria siempre |
|
berlo dubitatif | Ah oui ! pour avoir les matériaux les plus perspirants à l'extérieur |
Philibear Orbital Bacon | Le dtu prend les deux sens. Message cité 1 fois Message édité par Philibear le 04-07-2023 à 16:35:53 --------------- Mon topok ACH/VENTE: http://forum.hardware.fr/forum2.ph [...] ost=572744 |
Publicité | Posté le ![]() ![]() |

FORUM HardWare.fr

Discussions

Vie pratique

[Topic Unik]Construire / rénover sa maison ; Bientôt sur steam| Sujets relatifs | |
|---|---|
| Soupes maison : vos recettes | Electricité a la maison: gros problème |
| Recherche déco pour maison | Faire du sport à la maison ? |
| Faire construire au lieu d'acheter ? | Cadeau à construire? |
| Maison d'édition ? | Cherche Maison a louer sur Limoges |
| [archi] Prix d'une maison en monomur terre cuite ? | maison de retraite!! |
| Plus de sujets relatifs à : [Topic Unik]Construire / rénover sa maison ; Bientôt sur steam | |


