| |||||
FORUM HardWare.fr

Discussions

Vie pratique

[Topic Unik]Construire / rénover sa maison ; Bientôt sur steam| Auteur | Sujet : [Topic Unik]Construire / rénover sa maison ; Bientôt sur steam |
|---|---|
chrispc | Reprise du message précédent : |
Publicité | Posté le 20-03-2023 à 15:58:21 ![]() ![]() |
KaiserCz bros before hoes |
Message cité 1 fois Message édité par KaiserCz le 20-03-2023 à 16:03:50 |
chrispc |
KaiserCz bros before hoes |
silkr |
|
true-wiwi |
--------------- It's a simple mistake to make, to create love and to fall. |
pingu balboa Vieux pseudal nul :( | Du coup on écrit OTAN pour moi --------------- [TU]Les imprimantes 3D VORON (avec logs des HFRiens, voir FP) |
kimmeria |
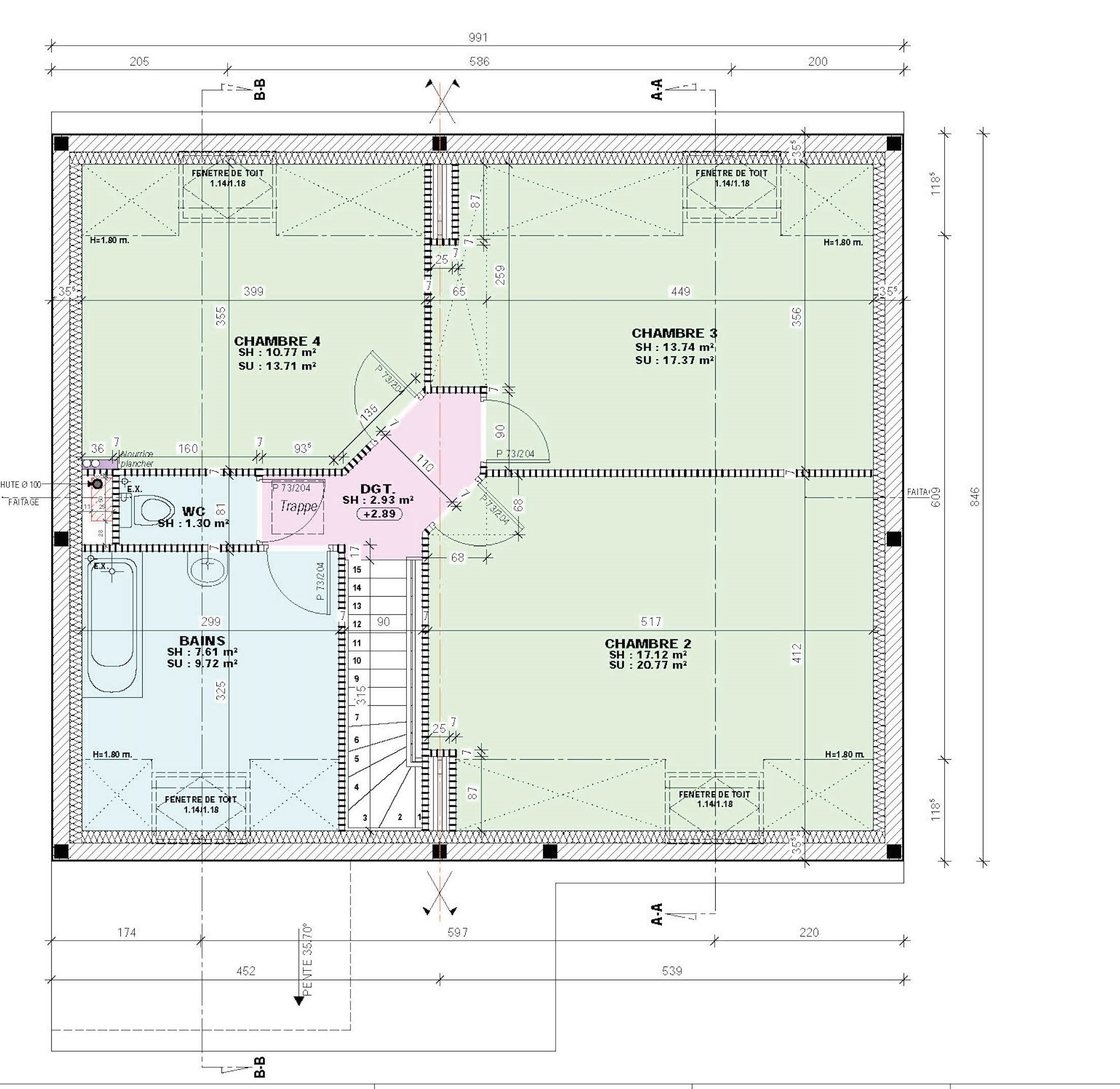
Au quotidien, si vous passez par la porte d'entrée du RDC, ça veut dire que la zone devant la porte sera souvent "sali" par les chaussures. Or c'est un passage intérieur obligé pour prendre l'escalier et aller à l'étage. Donc tu ramènes toutes les saletés à l'étage à chaque fois que tu passes Je n'ai pas de solution simple cela dit. Ce n'est pas évident. Et les chiotte du RDC sous l'escalier, il faut bien calculer tes distances car si tu es un peu grand (ou que tu as des enfants grands), c'est le genre de disposition où tu ne peux pas pisser debout car tu te prends le plafond en pente dans la tête Message cité 3 fois Message édité par kimmeria le 20-03-2023 à 16:24:47 |
Shaad |
|
Publicité | Posté le 20-03-2023 à 16:24:55 ![]() ![]() |
gloinfred |
|
gloinfred |
Message cité 1 fois Message édité par gloinfred le 20-03-2023 à 16:47:30 |
chevket |
|
leraturbain |
|
forgefx | Et ben, allez je m'y colle
Message cité 1 fois Message édité par forgefx le 20-03-2023 à 18:38:22 |
ryoo |
|
forgefx |
|
Aline BOQS Alsacobéquois. |
--------------- -=* Feedback de Liline *=- _._ -=* Ptit bazar à Liline *=- |
Carbon'R Fahren macht frei |
flash23 Fin de race brainwashée |
--------------- « Pourvu que c’était du lubrifiant. » |
gurucinta Good enough is perfect |
Les gens bien élevés ne pissent pas debout, pour éviter d'en mettre partout.
|
cob9 |
|
kimmeria |
Personnellement j'ai un urinoir en plus du WC chez moi, pour pisser debout sans en foutre partout, et surtout pour économiser l'eau (chasse 1L). Parce que je suis un gens bien élevé |
paracyber |
--------------- Quand on veut on peut, quand on peut on doit" © Bonaparte |
Carbon'R Fahren macht frei |
Ben t'as l'assurance, son numéro d'assuré, t'appelles. Même s'il te fournissait l'attestation que tu demandes, ça prouverait rien, ça peut être du Photoshop ou il peut ne plus être à jour de ses cotisations entre l'édition de l'attestation et les travaux.
Ceux qui ont un jardin économisent un litre supplémentaire --------------- A new power is rising |
kimmeria |
Surtout qu'il faut mettre 2 fois plus de laine dans les cloisons et/ou 2 fois plus de plaques de BA13 si tu fais du double parement (et donc 2 fois plus de main d'oeuvre aussi). Si tu fais ça pour la totalité de la maison, la diff de prix se comptera en milliers d'euros. Je suis d'avis qu'il faut renforcer l'acoustique de certaines cloisons, surtout celles des chambres. Mais que le reste de la maison peut être fait en classique BA13+45+BA13 (=7cm). Message cité 1 fois Message édité par kimmeria le 20-03-2023 à 22:51:00 |
mqnu Hu ? |
Je suis curieux de voir les WC en question --------------- :o |
Shaad |
|
kimmeria |
|
Shaad |
Tout ça, ça ne change pas
|
kimmeria |
C'est beaucoup de manutention la double peau. Avec des problème de logistique à la con qui apparaissent : Et puis double visserie, et mastic/MAP entre les parements au niveau des joints. Et je me demande si le DTU ne recommande pas de passer en double montant aussi dans ce cas, pour la rigidité et surtout pour faciliter le visage qui devient sportif en double parements sur une ailette de 35mm. Bien sûr que ça ne double pas le prix d'une cloison. Mais ce n'est pas non plus juste +3€/m² (le prix d'une plaque). Et pour aller au bout de la réflexion, il faudrait logiquement plaquer les murs avant les plafonds, pour ne pas avoir de plafond communiquant entre les pièces et être cohérent sur l'acoustique. Sauf que ça rend le plaquage des plafonds beaucoup plus chiant et long (beaucoup plus de découpes, moins facile d'accès avec le lève plaque, etc). Et les murs seront alors dans des dimensions non standard (>2,5m en hauteur), ce qui change le tarif de tout le matos : montants et plaques. Message édité par kimmeria le 21-03-2023 à 00:30:32 |
gloinfred |
|
andre1980 Les gros nichons vaincront |
--------------- Pacific Crest Trail, 4250km de marche au USA (Vente sur Amazon aussi). |
Nical_73 |
|
zeratul Empêcheur de tourner carré |
Ah oui |
kolian | Perso, je foutrai bien un urinoir...faut que je regarde la place que cela prend.
--------------- |
SanPe' Membre n°312819 |
--------------- "Vous avez beau travailler dur, devenir intelligent, on se rappellera toujours de vous pour la mauvaise raison." |
M4vrick Mad user |
--------------- --== M4vr|ck ==-- |
eeeinstein Électricien au CERN |
|
Publicité | Posté le ![]() ![]() |

FORUM HardWare.fr

Discussions

Vie pratique

[Topic Unik]Construire / rénover sa maison ; Bientôt sur steam| Sujets relatifs | |
|---|---|
| Soupes maison : vos recettes | Electricité a la maison: gros problème |
| Recherche déco pour maison | Faire du sport à la maison ? |
| Faire construire au lieu d'acheter ? | Cadeau à construire? |
| Maison d'édition ? | Cherche Maison a louer sur Limoges |
| [archi] Prix d'une maison en monomur terre cuite ? | maison de retraite!! |
| Plus de sujets relatifs à : [Topic Unik]Construire / rénover sa maison ; Bientôt sur steam | |


