| |||||
| Auteur | Sujet : [SUJET] Les grosses têtes du bâtiment, c'est ici ! :o |
|---|---|
Profil supprimé | Posté le 24-03-2020 à 19:34:08 ![]() Reprise du message précédent : |
Publicité | Posté le 24-03-2020 à 19:34:08 ![]() ![]() |
Lutinnoir Seul parmi les autres |
--------------- "If in doubt, flat out." @Colin McRae |
le_gribouri ZoNoS |
|
Profil supprimé | Posté le 25-03-2020 à 19:52:09 ![]() |
Bbelgarion :o |
Dzama Une vraie tête brûlée | Au chantier du tribunal à côté de chez moi, ils sont en train de démonter la grue ce matin.
--------------- Topic Chicha [:dzama] http://forum.hardware.fr/forum2.ph [...] w=0&nojs=0 |
likid PSN et GT : likid77 |
--------------- Feed - Topic [ACH/VDS] JV |
Profil supprimé | Posté le 26-03-2020 à 08:53:04 ![]()
|
Dzama Une vraie tête brûlée |
--------------- Topic Chicha [:dzama] http://forum.hardware.fr/forum2.ph [...] w=0&nojs=0 |
-luxboy- Votez pour moi | Bonjour,
|
Publicité | Posté le 26-03-2020 à 14:25:22 ![]() ![]() |
WILDLIKE |
|
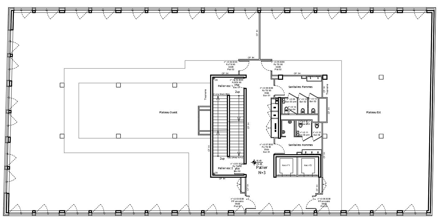
CAMPEDEL ⭐ Cibus vitam, vinum veritas ⭐ | Tiens, une question désenfumage d'escalier de secours à l'encan.
--------------- 1er message HFR, Maison, Ruptures, Ingénierie du bâtiment, Bougnats, Bonus Croustillant |
Profil supprimé | Posté le 27-03-2020 à 16:25:51 ![]() |
CAMPEDEL ⭐ Cibus vitam, vinum veritas ⭐ | J'ai eu un doute car sur une affaire les 2 escaliers de secours étaient en charpente métallique et sans mur d'échiffre, avec simplement des garde-corps qui se croisaient (et donc, à mi-volée, tu pouvais passer d'un escalier à l'autre en sautant par-dessus les garde-corps). Les 2 escaliers sont comme ça :
Message édité par CAMPEDEL le 27-03-2020 à 16:32:28 --------------- 1er message HFR, Maison, Ruptures, Ingénierie du bâtiment, Bougnats, Bonus Croustillant |
Profil supprimé | Posté le 27-03-2020 à 17:07:13 ![]() |
CAMPEDEL ⭐ Cibus vitam, vinum veritas ⭐ |
--------------- 1er message HFR, Maison, Ruptures, Ingénierie du bâtiment, Bougnats, Bonus Croustillant |
Profil supprimé | Posté le 27-03-2020 à 18:05:55 ![]() Vu les effectifs tu dois avoir besoin de 2 escaliers, donc IMO pas possible de les fusionner au dernier niveau. |
CAMPEDEL ⭐ Cibus vitam, vinum veritas ⭐ | Ah mais s'il a été prévu 2 escaliers, c'est clairement à cause des effectifs, je n'ai aucun doute là-dessus ! Donc, pour toi aussi chaque escalier est à encloisonner. Je lance le bordel dans les tuyaux ! Ce sera la seconde fois que je relèverais une connerie d'escaliers jumelés sur un projet pourtant tout monté en maquette numérique que c'est merveilleux et tellement mieux... Et ce sera la troisième fois que je le verrais. Message édité par CAMPEDEL le 27-03-2020 à 18:38:37 --------------- 1er message HFR, Maison, Ruptures, Ingénierie du bâtiment, Bougnats, Bonus Croustillant |
Profil supprimé | Posté le 29-03-2020 à 18:41:05 ![]() Bah oui faudrait sinon ça sert pas à grand chose Enfin dans le doute ils cuvellent tout donc bon... |
Phenix21 |
CAMPEDEL ⭐ Cibus vitam, vinum veritas ⭐ | Je reviens là-dessus en me rappelant ce matin qu'un immeuble que j'ai traité il n'y a pas longtemps avait ses 2 escaliers dans le même volume (et 2 lanterneaux) !
Message cité 2 fois Message édité par CAMPEDEL le 30-03-2020 à 11:26:39 --------------- 1er message HFR, Maison, Ruptures, Ingénierie du bâtiment, Bougnats, Bonus Croustillant |
sire deck |
--------------- |
Neocray Foo Fighter |
--------------- "Un type passe son temps dans un musée à écrire un bouquin inoffensif sur l'économie politique, et soudain des milliers de malheureux qui ne l'ont même pas lu meurent parce que ceux qui l'ont lu n'ont pas compris la blague." T. Pratchett, trad. P. Couton |
Profil supprimé | Posté le 30-03-2020 à 13:12:45 ![]() Si tu fais un cuvelage étanche pas de raison que ça passe. |
abonisyah | ca existe ca les cuvelages étanches ? --------------- Haters gonna hate, zaatar’s gonna zeit |
carbon38 Dead Rabbit! :o |
|
abonisyah | --------------- Haters gonna hate, zaatar’s gonna zeit |
Profil supprimé | Posté le 30-03-2020 à 13:23:55 ![]()
|
CAMPEDEL ⭐ Cibus vitam, vinum veritas ⭐ |
--------------- 1er message HFR, Maison, Ruptures, Ingénierie du bâtiment, Bougnats, Bonus Croustillant |
CAMPEDEL ⭐ Cibus vitam, vinum veritas ⭐ |
--------------- 1er message HFR, Maison, Ruptures, Ingénierie du bâtiment, Bougnats, Bonus Croustillant |
Neocray Foo Fighter |
--------------- "Un type passe son temps dans un musée à écrire un bouquin inoffensif sur l'économie politique, et soudain des milliers de malheureux qui ne l'ont même pas lu meurent parce que ceux qui l'ont lu n'ont pas compris la blague." T. Pratchett, trad. P. Couton |
Profil supprimé | Posté le 31-03-2020 à 09:38:27 ![]()
|
CAMPEDEL ⭐ Cibus vitam, vinum veritas ⭐ |
Le BdC confirme que sur cet immeuble il faut que les escaliers soient isolés. Hop, un caillou dans le jardin de l'archi.
Après tout, en réfléchissant un peu plus loin, s'il n'y avait que 1 escalier de 4UP de largeur dans une grande cage, ça ne poserait de problème à personne. Message cité 1 fois Message édité par CAMPEDEL le 31-03-2020 à 11:41:41 --------------- 1er message HFR, Maison, Ruptures, Ingénierie du bâtiment, Bougnats, Bonus Croustillant |
Profil supprimé | Posté le 31-03-2020 à 11:54:56 ![]()
|
likid PSN et GT : likid77 |
CAMPEDEL ⭐ Cibus vitam, vinum veritas ⭐ |
C'est combien le nombre d'UP max dans 1 escalier encloisonné ? Sur mon projet, ils font déjà 3UP chacun arrivés en bas... --------------- 1er message HFR, Maison, Ruptures, Ingénierie du bâtiment, Bougnats, Bonus Croustillant |
Profil supprimé | Posté le 31-03-2020 à 19:44:42 ![]() |
CAMPEDEL ⭐ Cibus vitam, vinum veritas ⭐ | Si plus de 19 personnes à l'étage => il faut 2 dégagements distincts => les escaliers doivent ecloisonnés indépendamment l'un de l'autre. OK
Message édité par CAMPEDEL le 31-03-2020 à 21:38:43 --------------- 1er message HFR, Maison, Ruptures, Ingénierie du bâtiment, Bougnats, Bonus Croustillant |
Publicité | Posté le ![]() ![]() |






