| |||||
| Auteur | Sujet : Cuisinistes - les bons plans | les arnaques |
|---|---|
gloinfred | Reprise du message précédent :
|
Publicité | Posté le 03-09-2025 à 10:28:47 ![]() ![]() |
diamond2 ///Made in Tchernobyl |
--------------- HFR - We are accidents waiting to happen |
gloinfred |
|
TheWayOut | je parle de microrayures visible sous la lumiere de la hotte. |
gloinfred | Ca je n'en ai pas. |
fajitasss Oooh oui fouette moi !!!! | Pareil je n en ai pas. Message cité 1 fois Message édité par fajitasss le 03-09-2025 à 12:25:07 |
gloinfred | Je viens de vérifier, et en fait j'en ai de visible en se mettant a 20cm de la plaque avec plein de lumiere.
|
diamond2 ///Made in Tchernobyl |
--------------- HFR - We are accidents waiting to happen |
laurent215 |
Message édité par laurent215 le 04-09-2025 à 12:23:43 |
Urevealz |
|
Publicité | Posté le 04-09-2025 à 18:03:29 ![]() ![]() |
fajitasss Oooh oui fouette moi !!!! |
GladiaS | Hello,
--------------- --- Gladia --- |
Frank Abagnale Jr Catch me if you can |
--------------- Keep pushing that lie. Keep pushing it. Keep pushing till you make it true. |
GladiaS | Salut,
J'ai utilisé la façade du lave-vaisselle pour en faire une façade de tiroir quand j'ai enlevé le lave-vaisselle pour placer un caisson avec rangement (et tiroir).
--------------- --- Gladia --- |
niku viaggiando controvento | vla les prix c'est encore plus cher qu'un cuisiniste |
djbennyj Ivre au chai | Hello.
Message édité par djbennyj le 17-09-2025 à 10:49:28 --------------- In vino very classe. T-shirts, accessoires et cadeaux vin et œnologie |
djbennyj Ivre au chai |
Message édité par djbennyj le 18-09-2025 à 10:04:07 --------------- In vino very classe. T-shirts, accessoires et cadeaux vin et œnologie |
GladiaS | Salut,
Je comprends tout a fait le besoin de rangements Message cité 1 fois Message édité par GladiaS le 20-09-2025 à 14:32:09 --------------- --- Gladia --- |
MarionOlya |
|
MarionOlya |
|
GladiaS | Hello, --------------- --- Gladia --- |
Batou | Hello Message cité 1 fois Message édité par Batou le 27-09-2025 à 16:23:09 |
-luxboy- Votez pour moi | Hello,
|
GladiaS | Salut,
Si j'arrive à refaire le plan, j'essayerai de regarder. Je te poserai sans doute des questions dans l'autre topic
L'ilot semble vraiment petit. Je ne pense pas que ce soit bien pertinent un ilot aussi petit.
--------------- --- Gladia --- |
-luxboy- Votez pour moi | Bonne question je m'en suis pas rendu compte |
Batou |
|
etoile64 Pas de bras, pas de 8a! | Je trouve aussi l’îlot assez ridicule dans cette taille. Message édité par etoile64 le 27-09-2025 à 22:52:52 --------------- « Moi, je suis un désespéré joyeux. J'ai cette mélancolie slave collée à l'âme. J'aime boire et pleurer. » |
-luxboy- Votez pour moi | C’est un très bon point, je n’y avait même pas pensé ! Je vais demandé au cuisiniste une nouvelle simulation !
|
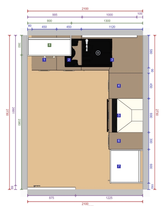
quietriot | J'ai besoin de tuyaux pour aménager une cuisine.Je n'arrive tout simple à voir le besoin en caissons pour un F2 / 2 personnes.Comme la cuisine est vraiment petite, 2.1 x 2.7m
|
GladiaS | Salut, La comme ça, tu ranges le strict minimum de vaisselles ou ustensiles avec cet aménagement. Bref, commence par faire le bilan de ce que tu as déjà, et ensuite, essaye d'imaginer comment tu peux tout ranger dans la cuisine que tu conçois. PS: Les tiroirs pour les meubles bas, c'est optimal. Même si ça coute vraiment plus cher, c'est un confort incomparable. Je dis ça pour le meuble de 60 à coté de l'évier. T'as pas déjà posté cette cuisine ? Message édité par GladiaS le 30-09-2025 à 20:56:01 --------------- --- Gladia --- |
quietriot | Effectivement |
quietriot | La ville ça, pour le plan de travail, j'ai une visu simple et bouilloire et cafetière pourront être présentes. Le reste des appareils serait utilisé rarement et donc stocker dans une autre pièce. |
-luxboy- Votez pour moi | J'ai surtout l'impression que dans tous les cas ton espace de stockage sera largement limité par la taille de la pièce non ? Car je vois pas trop où tu pourrais rajouter des meubles... A la limite au dessus du frigo s'il était intégré avec le reste ? |
Publicité | Posté le ![]() ![]() |

| Sujets relatifs | |
|---|---|
| Avis à tous les connaisseurs de bons livres | rencontres sur le net ses plans foireux ses plans qui marchent |
| Plans de Secours / Plan de Continuité Informatique | [Nouvel An] Vos bons plans sur Paris |
| Arnaques aux célibataires (hors sites de rencontres) | Bons plans pour le Reveillon de la Saint Sylvestre |
| Les bons plans du 31 Décembre ! | |
| Plus de sujets relatifs à : Cuisinistes - les bons plans | les arnaques | |





