| |||||
| Auteur | Sujet : Cuisinistes - les bons plans | les arnaques |
|---|---|
Professor | Reprise du message précédent :
|
Publicité | Posté le 22-09-2021 à 23:07:07 ![]() ![]() |
GladiaS |
Manque le piano de cuisson non ?
--------------- --- Gladia --- |
Eclat d'ombre Why not? |
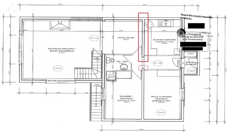
Un artisan se déplace la semaine prochaine avec son BET pour l'étude de structure du mur. Moi ? A part démonter les meubles en place et faire la peinture, je ne vais pas faire grand chose de plus On peut démarrer asap le tour des cuisiniste finalement, ça va prendre du temps et c'est là que sont les vraies inconnues de l'équation. Dans l'idéal il faut que je fasse les plans 3D de la maison avant d'y aller, et je me bouge. Pour le devis final, de vos expériences, c'est le cuisiniste qui vient prendre les mesures sur place ?
Edit :
Message cité 3 fois Message édité par Eclat d'ombre le 23-09-2021 à 01:37:04 --------------- |
GladiaS |
oui j'avais bien compté 655, je ne sais pas pourquoi j'ai écrit 635 Message cité 1 fois Message édité par GladiaS le 23-09-2021 à 02:05:01 --------------- --- Gladia --- |
gloinfred |
Message cité 1 fois Message édité par gloinfred le 23-09-2021 à 07:50:31 |
bouhi93 | Nous avons pris le notre là : (2 magasins à paris 7 et 93)
|
Groomy Oisif | Une question : on a acheté une cuisine chez Schmidt. Ça s'est bien passé jusqu'à la pose. Le gars a pété un carreau de carrelage, a pas mis l'évier au bon endroit (pas suivi le plan quoi, donc évier et plan de travail à remplacer) et divers petit soucis (manque des éléments, pet dans le mur suite au déplacement du frigo, fond de meuble cassé et j'en passe). Travail de cochon en gros. C'était en mai. Évidemment Schmidt a recommander tout ce qu'il faut, sauf que le poseur a été en arrêt maladie ensuite et le poseur revient "terminer" la cuisine semaine pro normalement (4 mois après donc et je ne suis pas très confiant sur le résultat). Il va surement réclamer le chèque de la pose après, le dernier. Message cité 1 fois Message édité par Groomy le 23-09-2021 à 12:03:20 --------------- Le matin, j'émerge de mes rêves, le plus heureux des anges. Je me couche le soir, un vrai salaud. Qu'ai-je donc fait entre-temps ? J'ai fréquenté les hommes et fouillé dans leur merde. |
Eclat d'ombre Why not? |
Non c'est vrai, dans les faits il faut partir sur 300, à voir pour calculer l'espace pour circuler (le topic m'a appris 120 dans l'idéal entre les éléments, 90 au minimum pour le LV par exemple). Il faut que je me bouge pour le plan 3D, j'ai commencé sur Kozikaza Evidemment que je vais revenir, HFR a son mot à dire sur ma cuisine
Merci les copains pour vos retours Message édité par Eclat d'ombre le 23-09-2021 à 13:10:00 --------------- |
marc-jule | Est-ce que quelqu'un a déjà fait ici un devis pour une cuisine Lube ou Creo ? (italienne)
|
Publicité | Posté le 23-09-2021 à 14:24:42 ![]() ![]() |
Gigax | Si tu as un problème de place dans le frigo, est-ce que le frigo encastré qui, à volume égal, a moins de place disponible pour les aliments, est une bonne idée ? |
Kibis |
|
bouhi93 |
|
bouhi93 |
|
GladiaS |
Tu l'as déjà commandé ? Auprès du cuisiniste ou ailleurs ? Sinon je ne sais pas Edit : après, si c'est comme les lave-vaisselle encastrable, c'est posable, mais simplement le moche le temps de recevoir "l'habillage" Message édité par GladiaS le 23-09-2021 à 23:07:39 --------------- --- Gladia --- |
Eclat d'ombre Why not? | Si vous me permettez je fais un up d'outre tombe pour cette cuisine.
Message cité 1 fois Message édité par Eclat d'ombre le 24-09-2021 à 12:45:35 --------------- |
Shitan detailer :o |
--------------- Ci git une signature. |
Eclat d'ombre Why not? | My bad le lien --------------- |
nebucad_nezzard don't panic | Hello,
--------------- S'il n'y a pas de solution, c'est qu'il n'y a pas de problème. / Mon feedback |
Professor |
-luxboy- Votez pour moi | Contrat pour ma cuisine signé samedi |
Shaad | On attend donc les photos de la pose en septembre/octobre 2022. --------------- Plus d'hébergeur du Simu_Immo qui n'était de toute façon plus à jour des derniers taux. Désolé. :/ |
dje33 | Les fours a 30/40°C c'est tres imprecis.
Message cité 2 fois Message édité par dje33 le 28-09-2021 à 13:37:38 |
Shitan detailer :o |
Notre four Siemens tient très bien le 35 degrés pour faire lever une brioche ou autre. --------------- Ci git une signature. |
Obelisque Farpaitement |
--------------- Quand l'appetit va, tout va ! |
moamatt banzaï !!! |
--------------- c'est au pied du mur que l'on voit le mieux le mur ! |
Shitan detailer :o | https://www.ubaldi.com/electromenag [...] 390179.php Le four HFR compliant --------------- Ci git une signature. |
Professor |
|
Eclat d'ombre Why not? |
Passage d'un artisan ce soir pour la casse du mur porteur pour ouvrir notre cuisine :
Il m'a parlé du cuisiniste pour qui il pose des cuisines, il s'appelle Howdens, ça vous parle ? J'ai fait une recherche sur le topic, qui n'a pas donné grand chose. Edit : ils ont l'air d'être les leaders de la cuisine en Angleterre. Message cité 1 fois Message édité par Eclat d'ombre le 29-09-2021 à 00:34:44 --------------- |
Hegemonie | Drap Est ce que quelqu'un a pu essayer le combiWave de chez Sage/Breville ? Le four "de base" a très très bonne réputation pour de la cuisson de précision (il serait précis au degré près) mais il est tout petit. Celui là fait 10L de plus, donc ça pourrait potentiellement m'intéresser si je peux rentrer une plaque standard en 400*300mm et si la convection marche bien. En sachant que j'ai un autre four à côté quand j'ai besoin de plus de place. Merci |
glabouni |
|
Eclat d'ombre Why not? |
Autre sujet : les cuisinistes ont des Message cité 1 fois Message édité par Eclat d'ombre le 29-09-2021 à 13:32:06 --------------- |
gloinfred |
|
Eclat d'ombre Why not? |
Shaad | Je ne représente aucune certification HFR mais je n'ai rien à reprocher à mes choix d'électro de cuisine en plus du four ci-dessus :
Message cité 2 fois Message édité par Shaad le 29-09-2021 à 14:13:42 --------------- Plus d'hébergeur du Simu_Immo qui n'était de toute façon plus à jour des derniers taux. Désolé. :/ |
Shitan detailer :o |
--------------- Ci git une signature. |
Obelisque Farpaitement |
--------------- Quand l'appetit va, tout va ! |
Publicité | Posté le ![]() ![]() |

| Sujets relatifs | |
|---|---|
| Avis à tous les connaisseurs de bons livres | rencontres sur le net ses plans foireux ses plans qui marchent |
| Plans de Secours / Plan de Continuité Informatique | [Nouvel An] Vos bons plans sur Paris |
| Arnaques aux célibataires (hors sites de rencontres) | Bons plans pour le Reveillon de la Saint Sylvestre |
| Les bons plans du 31 Décembre ! | |
| Plus de sujets relatifs à : Cuisinistes - les bons plans | les arnaques | |





