| |||||
| Auteur | Sujet : Cuisinistes - les bons plans | les arnaques |
|---|---|
zim_zum63 Ni en pedo !!! | Reprise du message précédent :
--------------- Vous voulez pas un whisky d'abord ? |
Publicité | Posté le 03-04-2023 à 10:08:44 ![]() ![]() |
Jay Kay |
Ah oui, tu as raison, j'ai oublié de virer le lave vaisselle qu'on a déjà. Oui, la config est simple, l'avantage d'un schmidt par exemple, c'est les meubles de grande profondeur, grande hauteur, qui optimisent le volume dispo. Et puis le "all-inclusive" et garantie. 4700 la IKEA sans le LV et le plan de travail.
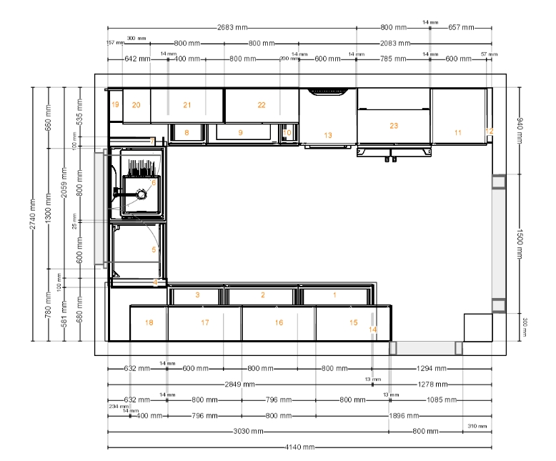
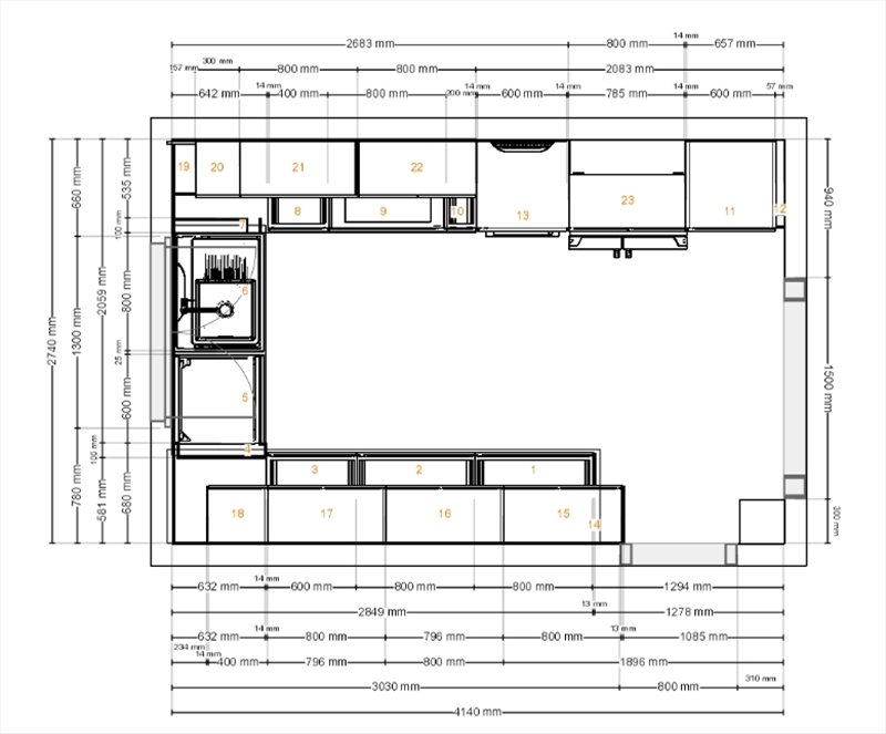
Pour trois raisons : - La fenêtre est basse et ne permet pas un plan à une hauteur cohérente (actuellement l'évier est sous la fenêtre, trop bas) Message cité 1 fois Message édité par Jay Kay le 03-04-2023 à 10:21:09 --------------- Écolo anti-capitaliste notoire, extrémiste de la pédale en déconstruction, vegan carencé, féministe brakeless à ses heures, et amish islamo-gauchiste woke mormont évidemment |
arylol |
Alors le lave vaisselle c'est le seul électro qu'il vaudrait mieux pas récupérer pour éviter le système d'adaptation Ikea. Ils proposent quoi en hauteur profondeur parce que j'ai du mal a imaginer plus grands que ceux d'ikea ? |
Jay Kay | J'ai déjà un Bosch qui fonctionne, je compte pas le bazarder. Après faudrait juste que je négocie bien la schmidt et ça irait. Déjà si je remplace l'évier et je dégage les moulures des portes, on économise 1000€. Faudrait gratter encore autant et ça deviendrait plus humain. En terme de profondeur, ils proposent des meubles qui font +5cm, et en terme de hauteur idem : spot commercial : https://youtu.be/s3gmCpr0WOQ Ca nous permet de profiter au mieux du décroché dans le mur : chez ikea, j'avance simplement les meubles pour les aligner avec celui de demi-profondeur, chez Schmidt ils sont plus profonds. Bon, faut que j'en consulte un autre : mobalpa, ixina, arthur bonnet, noblessa, socooc, voir des allemands ... ? Message édité par Jay Kay le 03-04-2023 à 11:00:15 --------------- Écolo anti-capitaliste notoire, extrémiste de la pédale en déconstruction, vegan carencé, féministe brakeless à ses heures, et amish islamo-gauchiste woke mormont évidemment |
arylol |
|
tyua |
|
gloinfred |
Message édité par gloinfred le 04-04-2023 à 17:42:38 |
Publicité | Posté le 04-04-2023 à 08:26:23 ![]() ![]() |
bouhi93 |
Message cité 1 fois Message édité par bouhi93 le 04-04-2023 à 10:55:18 |
tyua |
|
gloinfred |
Message cité 2 fois Message édité par gloinfred le 05-04-2023 à 11:39:01 |
GladiaS | Salut,
J'étais en train de me dire la même chose, avec ce visuel en plus qui appuie cette impression, surtout avec dès l'entrée les colonnes et le frigo imposant. Message cité 1 fois Message édité par GladiaS le 05-04-2023 à 13:56:02 --------------- --- Gladia --- |
zim_zum63 Ni en pedo !!! | Je comprends pas cette manie de systématiquement vouloir foutre un frigo qui refroidi à côté d'un four qui chauffe...
--------------- Vous voulez pas un whisky d'abord ? |
Shaad | Techniquement, les 2 réchauffent l'air présent dans le volume de la cuisine. Que le frigo et le four soient proches ou séparés de 2m ne doit pas changer grand chose sur le bilan global, la proximité immédiate du frigo assure une température au repos un peu plus élevée du four et donc une consommation moindre à chaque utilisation. Message cité 1 fois Message édité par Shaad le 05-04-2023 à 14:20:52 |
FRACTAL |
|
Shaad | Il y aura forcément un impact, faible mais existant. |
pysnoo |
|
bouhi93 |
|
GladiaS | Hello,
La 2ème passe bien, en mélange clair/foncé. Message cité 1 fois Message édité par GladiaS le 05-04-2023 à 18:35:44 --------------- --- Gladia --- |
pysnoo |
|
MoNgOoS3 Gnah |
|
nanaki59 | Bonjour à tous,
|
Zaib3k |
|
bouhi93 | oui, ça j'ai oublié, de même que l'espace vide pour fixer un support sèche torchon ou y placer la fameuse desserte de cuisine. |
manuches What the fuck did I do ?! | drap |
bouhi93 | Nolte c'est quasiment du Hdg pour moi... Après, l'implantation, les options proposées, la qualité de l'interlocuteur/sav de ta boutique... |
gloinfred |
|
jcqs épais comme une brique | Pour le 1, tu veux dire que l'espace entre le meuble bas et le meuble haut est une verrière ? Le meuble haut est fixé sur une imposte? Message cité 1 fois Message édité par jcqs le 16-04-2023 à 23:53:35 --------------- diablo3 : jcqs#2507 |Topac pâtisserie ! |
buggy2680 Gamertag xbox : pitipotinou |
|
Jay Kay |
1) Yep. C'est dans l'hypothèse où la verrière ne fait pas full largeur mais plutôt juste l'espace entre plaque et évier. Message cité 1 fois Message édité par Jay Kay le 17-04-2023 à 07:23:56 --------------- Écolo anti-capitaliste notoire, extrémiste de la pédale en déconstruction, vegan carencé, féministe brakeless à ses heures, et amish islamo-gauchiste woke mormont évidemment |
jcqs épais comme une brique |
Ok je vois mieux. Et effectivement ta verrière va être cracra avec la plaque de cuisson et l'évier. J'ai des potes qui ont ça au dessus de l'évier et soit tu acceptes que ça soit sale soit tu nettoies une fois par jour. C'est du verre, c'est pas chiant à nettoyer cela dit. --------------- diablo3 : jcqs#2507 |Topac pâtisserie ! |
gloinfred |
|
Publicité | Posté le ![]() ![]() |

| Sujets relatifs | |
|---|---|
| Avis à tous les connaisseurs de bons livres | rencontres sur le net ses plans foireux ses plans qui marchent |
| Plans de Secours / Plan de Continuité Informatique | [Nouvel An] Vos bons plans sur Paris |
| Arnaques aux célibataires (hors sites de rencontres) | Bons plans pour le Reveillon de la Saint Sylvestre |
| Les bons plans du 31 Décembre ! | |
| Plus de sujets relatifs à : Cuisinistes - les bons plans | les arnaques | |





