| |||||
| Auteur | Sujet : Cuisinistes - les bons plans | les arnaques |
|---|---|
twain2 | Reprise du message précédent :
Comment voit tu sur le site que c est compatible ? |
Publicité | Posté le 03-11-2021 à 15:50:43 ![]() ![]() |
onina |
Pour le frigo y'a aucun soucis à prendre hors Ikea. Pour le LV apparemment ça se fait bien moyennant petit bricolage mais c'est plus touchy, perso du coup je me suis pas pris la tête et j'ai pris un LV Ikea (qui me convient très bien à ce jour). Message édité par onina le 03-11-2021 à 19:27:09 |
multi_virus Celui-ci est gentil... | Le bricolage du LV pour économiser quelques euros on va éviter. On n'en a pas, donc il faudra en acheter un...
Message cité 2 fois Message édité par multi_virus le 03-11-2021 à 19:40:53 |
chocomog | Les LV ikea sont en rupture depuis des mois... |
multi_virus Celui-ci est gentil... |
ours02 |
--------------- Nouveaux albums! https://www.flickr.com/photos/12372 [...] 3080957133 |
gloinfred |
|
Publicité | Posté le 04-11-2021 à 13:26:52 ![]() ![]() |
RomainD2 |
--------------- [LIVRE] Comprendre et Améliorer le nouveau DPE 2021 - Code HFR : forum-hfr |
jjboy91 | La VMC n'est pas obligatoire dans une cuisine ?
Message cité 1 fois Message édité par jjboy91 le 05-11-2021 à 13:50:23 |
ours02 |
--------------- Nouveaux albums! https://www.flickr.com/photos/12372 [...] 3080957133 |
PierrotLeDingue Yes we KANTE ! |
|
RomainD2 | Ok ça marche, VMC + Hotte.
--------------- [LIVRE] Comprendre et Améliorer le nouveau DPE 2021 - Code HFR : forum-hfr |
archianddesign Less is more | Merci pour ta réponse ! Message cité 1 fois Message édité par archianddesign le 06-11-2021 à 20:16:03 |
onina |
Suffit de faire une encoche dans les meubles pour faire passer les tuyaux, j'ai toujours fait (ou fait faire) ça, ça fonctionne très bien. Par contre avec les meubles à tiroir ça peut être chiant (perso je n'ai jamais eu à faire ça que sur le meuble évier, à placard). Suis d'accord avec etoile pour les colonnes, y'a pas moyen de faire un 'mur' de colonnes plutôt sur l'autre mur (le mur à gauche sur l'image 3d) ? |
archianddesign Less is more | Merci pour les retours !
Message cité 1 fois Message édité par archianddesign le 06-11-2021 à 21:57:23 |
archianddesign Less is more |
|
GladiaS |
Message édité par GladiaS le 06-11-2021 à 22:13:18 --------------- --- Gladia --- |
dje33 |
|
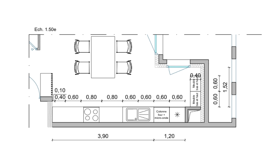
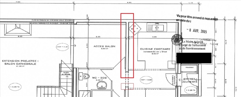
Eclat d'ombre Why not? | Bonsoir le topic Après mon flood de questions ici, les voici, les voilà, ils commencent à arriver, les devis Je repost pour rappel le plan de la cuisine actuelle avec le mur porteur qui sera cassé (en rouge) : A noter que lorsque je parle de tarifs ci-dessous, je ne parlerai que des meubles.
Tarifs :
Tarifs :
Tarif :
Pour rappel, les photos des blocs de quartzite Mont Blanc : Autant j'adore la finition cuir sur du granit du Z, autant pour du blanc je pense qu'en finition polie sera du plus bel effet pour les PdT et crédence. Le carrelage, sûrement ça, en carreaux de 90x90 :
Allez-y, sortez la sulfateuse et le napalm Edit : pour les devis je peux vous les anonymiser et les mettre à disposition demain. Message cité 1 fois Message édité par Eclat d'ombre le 08-11-2021 à 01:23:16 --------------- |
PierrotLeDingue Yes we KANTE ! | Perso je préfère le visuel Nolte. L'espace cuisine me semble mieux défini. Par contre j'ai l'impression qu'il est plus réduit, l'espace cuisine est moins étendu non ? |
gloinfred |
Message cité 2 fois Message édité par gloinfred le 08-11-2021 à 12:27:12 |
Publicité | Posté le ![]() ![]() |

| Sujets relatifs | |
|---|---|
| Avis à tous les connaisseurs de bons livres | rencontres sur le net ses plans foireux ses plans qui marchent |
| Plans de Secours / Plan de Continuité Informatique | [Nouvel An] Vos bons plans sur Paris |
| Arnaques aux célibataires (hors sites de rencontres) | Bons plans pour le Reveillon de la Saint Sylvestre |
| Les bons plans du 31 Décembre ! | |
| Plus de sujets relatifs à : Cuisinistes - les bons plans | les arnaques | |





