| |||||
| Auteur | Sujet : Cuisinistes - les bons plans | les arnaques |
|---|---|
Publicité | Posté le 09-06-2022 à 06:20:04 ![]() ![]() |
GladiaS | Salut,
--------------- --- Gladia --- |
Zaib3k |
|
gloinfred |
|
Zaib3k |
|
gonc |
Nous avions cette contrainte, obligé de mettre la table à manger dans la cuisine (je n'aime pas les cuisines ouvertes notamment à cause des nuisances sonores, je cuisine et patisse beaucoup donc utilisation robots +++). --------------- Mon compte insta de pâtisseries : https://www.instagram.com/entremets [...] les/?hl=fr |
etoile64 Pas de bras, pas de 8a! |
--------------- « Moi, je suis un désespéré joyeux. J'ai cette mélancolie slave collée à l'âme. J'aime boire et pleurer. » |
Publicité | Posté le 10-06-2022 à 10:44:53 ![]() ![]() |
Zaib3k |
|
GladiaS | Salut,
Message édité par GladiaS le 10-06-2022 à 16:04:09 --------------- --- Gladia --- |
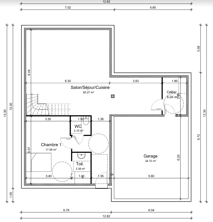
Zaib3k | hello mon projet avance petit à petit et je reviens sur le sujet de la cuisine. pour le moment, je ne suis pas emballé. merci pour vos idées! Message cité 2 fois Message édité par Zaib3k le 18-06-2022 à 10:00:20 |
Zaib3k | j'ai ajouté le plan du rdc, sans fenêtre.
|
Zaib3k | je peux gratter 15/20 cm. J'ai testé avec des croquis et je gagne pas vraiment en aménagement ou en espace repas. |
etoile64 Pas de bras, pas de 8a! |
--------------- « Moi, je suis un désespéré joyeux. J'ai cette mélancolie slave collée à l'âme. J'aime boire et pleurer. » |
Zaib3k |
|
GladiaS |
T'as trouvé un plan de maison qui te plait ? Message cité 1 fois Message édité par GladiaS le 18-06-2022 à 17:01:12 --------------- --- Gladia --- |
Zaib3k |
je vais regarder tes idées un peu plus tard. merci. J'ai pensé à la petite table ronde. Je peux aussi me contenter d'une table pour 2, dans le pire des cas. edit: Message cité 1 fois Message édité par Zaib3k le 18-06-2022 à 17:15:59 |
GladiaS |
Ah ah ça va rentrer tout ric rac alors
Il me semble que le terrain est là, et que Z. cherche des plans avec cuisine séparée pour l'instant Message édité par GladiaS le 18-06-2022 à 17:27:39 --------------- --- Gladia --- |
Zaib3k | parce que je suis déjà au delà du taquet en surface habitable et donc en budget.
|
GladiaS | Salut,
Message édité par GladiaS le 19-06-2022 à 08:11:41 --------------- --- Gladia --- |
etoile64 Pas de bras, pas de 8a! | J'aurai tenté le 1er plan avec un autre linéaire en face du 1er (et four sous plan et MO dans les colonnes "coupées" ), et un petit retour pour faire plan snack (ça ferait plus qu'un U du coup). Les angles hauts des colonnes sont au contraire très pratiques pour y mettre le petit EM qui prend de la place sur le plan de travail (cafetière, grille pain... ), tu perds effectivement le bas, mais en mettant 2 linéaires face à face tu le rattrapes largement.
Message cité 1 fois Message édité par etoile64 le 19-06-2022 à 09:35:15 --------------- « Moi, je suis un désespéré joyeux. J'ai cette mélancolie slave collée à l'âme. J'aime boire et pleurer. » |
GladiaS |
--------------- --- Gladia --- |
GladiaS | Salut,
En fait ta cuisine en longueur me rappelle ce que j'avais essayé pour la cuisine de Daneel, pour ça sans doute que j'ai refait un peu pareil pour ta cuisine.
Message édité par GladiaS le 19-06-2022 à 18:54:47 --------------- --- Gladia --- |
GladiaS | @étoile64 : j'avoue Message cité 1 fois Message édité par GladiaS le 19-06-2022 à 18:52:07 --------------- --- Gladia --- |
Zaib3k |
|
Zaib3k |
|
multi_virus Celui-ci est gentil... | Hello !
|
Publicité | Posté le ![]() ![]() |

| Sujets relatifs | |
|---|---|
| Avis à tous les connaisseurs de bons livres | rencontres sur le net ses plans foireux ses plans qui marchent |
| Plans de Secours / Plan de Continuité Informatique | [Nouvel An] Vos bons plans sur Paris |
| Arnaques aux célibataires (hors sites de rencontres) | Bons plans pour le Reveillon de la Saint Sylvestre |
| Les bons plans du 31 Décembre ! | |
| Plus de sujets relatifs à : Cuisinistes - les bons plans | les arnaques | |





