| |||||
| Auteur | Sujet : Cuisinistes - les bons plans | les arnaques |
|---|---|
daneel12 | Reprise du message précédent :
|
Publicité | Posté le 01-05-2022 à 22:46:46 ![]() ![]() |
GladiaS |
Message cité 1 fois Message édité par GladiaS le 02-05-2022 à 05:43:10 --------------- --- Gladia --- |
daneel12 | Ca donne beaucoup à réfléchir ton dessin, je n'imaginais pas ouvrir autant de peur de perdre une surface de mur sur laquelle mettre un meuble bas et la télé. Je ne sais pas encore si on va partir sur cet aménagement, mais j'adore voir des options que je n'avais pas envisagé J'ai RDV chez un cuisiniste demain, je vous dirai s'il propose des choses intéressantes ! Message cité 2 fois Message édité par daneel12 le 02-05-2022 à 20:00:55 |
GladiaS | Salut,
--------------- --- Gladia --- |
shebangz | Bonsoir à tous. |
gloinfred |
|
VIckado |
|
Obelisque Farpaitement |
--------------- Quand l'appetit va, tout va ! |
GladiaS |
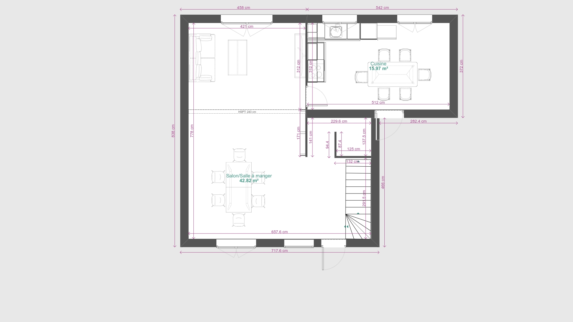
Hier soir j'ai changé un peu pour faire une cuisine complètement fermée, donc tu regagnes le mur coté salon. Dans la cuisine, à la place des deux colonnes de rangement, un ensemble meubles bas+haut, et donc création d'une petite niche de travail de 1m de large (si les côtes sont bonnes) où tu peux poser des appareils. Pour la porte, en doublant la cloison existante du milieu du salon, peut-être qu'il serait possible d'insérer une porte coulissante à galandage, comme ça, l'ouverture ne gêne ni coté cuisine, ni coté salon, tu gardes des murs libres pour y poser des choses (mais peut-être pas y fixer des meubles lourds). voilou Edit : pour les couleurs de la cuisine j'ai copié cette réalisation d'une émission de télé M6 Message cité 1 fois Message édité par GladiaS le 03-05-2022 à 19:20:34 --------------- --- Gladia --- |
shebangz |
|
Publicité | Posté le 03-05-2022 à 20:22:51 ![]() ![]() |
Chips | Pour ceux qui ont une cuisine noire, quelle couleur de caisson vous conseillez ? |
crapulor | Popopopo le garde manger rempli de Maggi |
Eclat d'ombre Why not? | Salut Après quelques temps je reviens donner quelques nouvelles. Les travaux de préparation (casse mur porteur, pose IPN, sols, murs, plomberie et élec) devaient débuter aujourd'hui, et bien sûr l'entrepreneur m'appelle hier (heureusement que j'ai relancé pour avoir son horaire de venue) pour me dire qu'il va falloir décaler Bon à part ça, j'ai renvoyé le Grohe Blue Home à Amazon, ça fait moins de bulles que de la San Pelegrino donc autant dire que c'est un jouet luxueux bien inutile. Et je vais commander l'électro : Message cité 1 fois Message édité par Eclat d'ombre le 04-05-2022 à 14:37:10 --------------- |
Tex Mex |
|
Eclat d'ombre Why not? |
Alors c'est bon la maison ne s'est pas écroulée ? Tu as pris des photos j'espère pour le CR que tu feras à la fin Dernière hésitation four/MO, entre le pack HFR compliant de Siemens et ce pack Bosch quelle est la position du topic ? C'est tout de même 1k€ plus cher, est-ce que la vapeur et la sonde valent ce surcoût selon vous, d'après vos usages (3 rails télescopiques également) ? Message cité 1 fois Message édité par Eclat d'ombre le 05-05-2022 à 19:02:29 --------------- |
chocomog |
|
chris_san ˙ʇɥƃıɹ ǝʇınb ʇou sı ƃuıɥʇǝɯoS |
Message édité par chris_san le 06-05-2022 à 11:51:53 --------------- .: FEED-BACK :. .: Topic Achats/Ventes :. |
wande |
|
arylol |
|
jjboy91 |
GladiaS |
Message cité 1 fois Message édité par GladiaS le 16-05-2022 à 17:21:37 --------------- --- Gladia --- |
arylol |
Ça dépends certains sont encore ok. T'en connais d'autres ? |
bouhi93 |
|
gloinfred |
Message cité 1 fois Message édité par gloinfred le 17-05-2022 à 14:54:15 |
bouhi93 | Disons qu'au niveau des panneaux, c'est kif kif avec schmidt. Mais je regrette la nolte que j'avais à mon précédent logement : les joints, quel bonheur... |
witjet |
|
Tex Mex |
|
dje33 | Je mettrais IKEA en top rapport qualité prix. Message cité 2 fois Message édité par dje33 le 18-05-2022 à 11:21:16 |
arylol |
C'est une des raison qui fait que je repars sur du ikea pour ma maison ( en plus du fait qu'ils ont un modèle qui nous plaît beaucoup). Par contre c'est difficilement adaptable aux dimensions. |
zim_zum63 Ni en pedo !!! | Je trouve Cuisinella au-dessus d'Ixina en termes de qualité, mais ça c'est en comparant de showroom à showroom ! --------------- Vous voulez pas un whisky d'abord ? |
dje33 |
Je ne connais plus les prix depuis le COVID (je crois que les prix ont augmenté) mais c'est imbattable. Avec les caissons de 30-40-60-80 tu arrive à couvrir quasiment toute les dimensions. Il y a plein de personnalisation possible avec les accessoires Ikea pour les tirroirs. |
Publicité | Posté le ![]() ![]() |

| Sujets relatifs | |
|---|---|
| Avis à tous les connaisseurs de bons livres | rencontres sur le net ses plans foireux ses plans qui marchent |
| Plans de Secours / Plan de Continuité Informatique | [Nouvel An] Vos bons plans sur Paris |
| Arnaques aux célibataires (hors sites de rencontres) | Bons plans pour le Reveillon de la Saint Sylvestre |
| Les bons plans du 31 Décembre ! | |
| Plus de sujets relatifs à : Cuisinistes - les bons plans | les arnaques | |





