| |||||
| Auteur | Sujet : Cuisinistes - les bons plans | les arnaques |
|---|---|
dje33 | Reprise du message précédent :
Je ne connais plus les prix depuis le COVID (je crois que les prix ont augmenté) mais c'est imbattable. Avec les caissons de 30-40-60-80 tu arrive à couvrir quasiment toute les dimensions. Il y a plein de personnalisation possible avec les accessoires Ikea pour les tirroirs. |
Publicité | Posté le 18-05-2022 à 13:49:40 ![]() ![]() |
dje33 |
Il faut que cela soit vraiment de l'ultra premier prix pour que le caisson tombe en lambeaux. |
gloinfred |
Message cité 1 fois Message édité par gloinfred le 18-05-2022 à 14:26:32 |
arylol |
|
gloinfred |
bouhi93 |
jcqs épais comme une brique | On a pris chez Schmidt finalement. 10k€ de meubles+électroménager, 2k€ de plan de travail en granit, finition cuir 2cm d'épaisseur. L'electromenager c'est du standard rien de particulier. Les meubles bas sont plus profonds que le standard. Et il y a deux gros meubles avec de gros tiroirs, ça c'est cool. --------------- diablo3 : jcqs#2507 |Topac pâtisserie ! |
onina |
J'ai vu des cas de Cuisinella en l'occurrence
Personnellement j'ai vraiment pas vu la différence entre Mobalpa et Ikea. Je trouve que Mobalpa est très très cher pour les choix qu'ils offrent. Quitte à mettre plus de thunes, c'est pas chez Mobalpa que j'irais. Message cité 2 fois Message édité par onina le 18-05-2022 à 19:26:53 |
dje33 |
|
Publicité | Posté le 18-05-2022 à 20:13:46 ![]() ![]() |
bouhi93 | Plus tu as de grandes casseroles/poeles, plus c'est indispensable.
|
gloinfred |
Message cité 1 fois Message édité par gloinfred le 18-05-2022 à 22:51:00 |
dje33 |
|
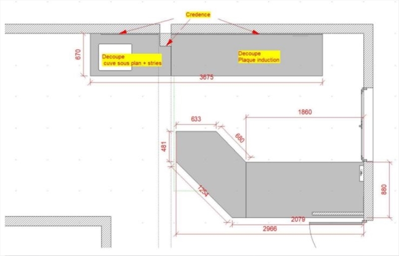
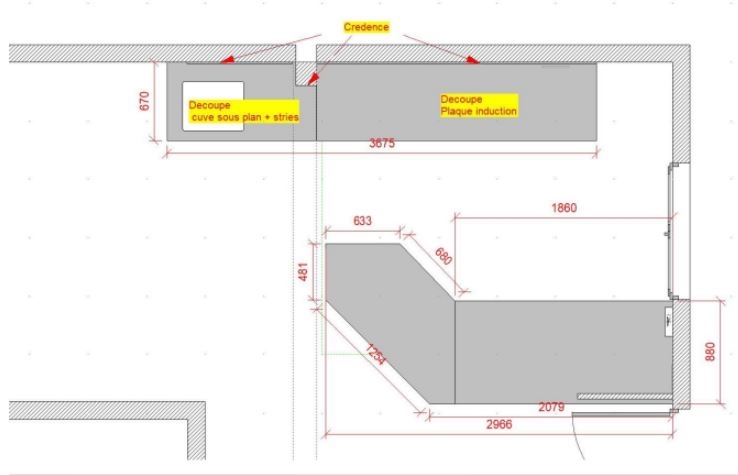
indiana77 :o | Hello, je viens d’un autre topic (renovation) et on m’a demandé de partager mon projet pour une cuisine de 13m² Message cité 2 fois Message édité par indiana77 le 19-05-2022 à 21:25:59 --------------- Je veux bien être d'accord avec toi mais on serait deux à avoir tort |
bouhi93 |
|
pascal2021 |
|
Johnjohn7 |
--------------- Lapistacheraie.com pour vos recettes de pâtisserie mais aussi de cuisine ! |
indiana77 :o | --------------- Je veux bien être d'accord avec toi mais on serait deux à avoir tort |
pascal2021 |
|
Glor- |
Message cité 1 fois Message édité par Glor- le 21-05-2022 à 16:38:08 |
GladiaS |
Pour le petit dej, vous ferez un jour/2 chacun face à la fenêtre pour pas faire de jaloux Message cité 1 fois Message édité par GladiaS le 21-05-2022 à 19:14:57 --------------- --- Gladia --- |
Glor- |
Message édité par Glor- le 21-05-2022 à 20:15:18 |
Glor- |
Message édité par Glor- le 23-05-2022 à 14:56:25 |
etoile64 Pas de bras, pas de 8a! | Ça m’angoisse un tiroir comme ça --------------- « Moi, je suis un désespéré joyeux. J'ai cette mélancolie slave collée à l'âme. J'aime boire et pleurer. » |
dje33 | +1 Comme quoi. Chacun ses goûts et ses envies |
dje33 | Justement. Je trouve qu'il y a trop de truc dans le même tiroir. Je préfère avoir deux tiroirs. Message édité par dje33 le 23-05-2022 à 19:23:42 |
dje33 | Je n'ai pas autant de matériel |
pascal2021 |
|
bouhi93 | Plus tu as de grandes marmites, moins tu perds de place avec le 120 cm. Dans ton cas, il te faudrait 3 *60 cm pour un tiroir de 120 cm |
Eclat d'ombre Why not? | Ici si on avait pu faire du 120 on aurait pris du 120, mais ça complexifiait l'intégration et là ça colle mieux à notre usage et à la typologie de la pièce. L'arrière du meuble ci-dessus : Ca intéresse le topic les travaux de préparation en cours ? C'est impressionnant la pose d'un IPN Un mot sur Perene : notre commercial est vraiment aux petits soins, il appelle pour prendre des nouvelles de l'avancée des travaux et il s'est même déplacé pour voir, à son initiative. Il a presque passé la matinée chez nous.
Message cité 1 fois Message édité par Eclat d'ombre le 25-05-2022 à 12:04:52 --------------- |
pascal2021 |
|
Publicité | Posté le ![]() ![]() |

| Sujets relatifs | |
|---|---|
| Avis à tous les connaisseurs de bons livres | rencontres sur le net ses plans foireux ses plans qui marchent |
| Plans de Secours / Plan de Continuité Informatique | [Nouvel An] Vos bons plans sur Paris |
| Arnaques aux célibataires (hors sites de rencontres) | Bons plans pour le Reveillon de la Saint Sylvestre |
| Les bons plans du 31 Décembre ! | |
| Plus de sujets relatifs à : Cuisinistes - les bons plans | les arnaques | |





