| |||||
| Auteur | Sujet : Cuisinistes - les bons plans | les arnaques |
|---|---|
VIckado | Reprise du message précédent :
|
Publicité | Posté le 10-01-2022 à 15:00:57 ![]() ![]() |
etoile64 Pas de bras, pas de 8a! | Les boutons c’est mieux en façade en effet. --------------- « Moi, je suis un désespéré joyeux. J'ai cette mélancolie slave collée à l'âme. J'aime boire et pleurer. » |
ramseys |
|
bouhi93 | avec les gnomes à la maison, on a pris four en hauteur. |
glabouni |
|
glabouni |
|
gloinfred |
Message cité 1 fois Message édité par gloinfred le 10-01-2022 à 19:02:12 |
nounours78 |
Publicité | Posté le 10-01-2022 à 17:17:55 ![]() ![]() |
chocomog | Perso j'ai mis un MO à 50 balles dans un meuble haut, derrière une porte lift. Je m'en serai bien carrément passé mais madame en voulait un. |
Eclat d'ombre Why not? | Pour avoir un avant/après suite à notre déménagement décent où l'on est passés de four sous la plaque à four à mi-hauteur, on préfère de très, très loin le four à mi-hauteur.
Message cité 1 fois Message édité par Eclat d'ombre le 10-01-2022 à 17:27:33 --------------- |
Eclat d'ombre Why not? | Le topic est en pleine effervescence, vous allez plus vite que le topic Covid
Message édité par Eclat d'ombre le 10-01-2022 à 17:35:14 --------------- |
ramseys |
|
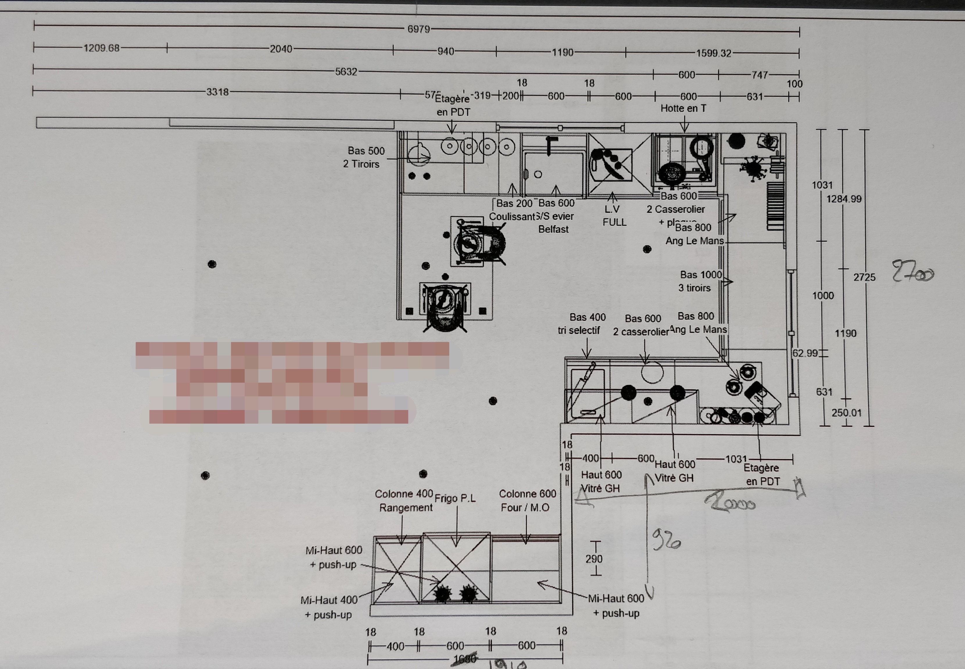
ramseys | Voilà un rendu de ce qu'on a imaginé ici avec Darty. Actuellement l'évier est sous la fenêtre, on a bien aimé la propale de le mettre en presqu'ile, ça fait gagner pas mal de surface de PDT. Message cité 1 fois Message édité par ramseys le 10-01-2022 à 18:05:22 |
bouhi93 |
|
bouhi93 |
|
ramseys |
|
rody |
--------------- Mon feed ici Origin : Urbain_Lambert |
nounours78 |
|
nounours78 |
|
bouhi93 |
|
bouhi93 |
|
onina |
Si tu n'as pas besoin régulièrement d'utiliser le four et le micro-onde en même temps, le four combiné est une très belle invention. |
ramseys |
|
ramseys |
|
GladiaS |
Un four combiné qui fait aussi micro onde ce n'est pas un MO-Grill d'étudiant.
--------------- --- Gladia --- |
ramseys |
J'ai tendance à éviter les appareils combinés quand possible, justement pour éviter de devoir tout changer quand tout fait défaut. Après, avec des enfants en bas âge, je pense que c'est pour nous indispensable d'avoir un MO séparé, pour pas se retrouver dans l'incapacité de réchauffer un biberon ou un plat parce que le four est pris par un gratin/poulet/roti/pizza ou autre... |
chocomog |
|
ramseys | En fait on a déjà un grand frigo congélateur de 60, je pensais réserver la place pour un frigo 90 en cas de changement ultérieur, mais c'est pas forcément un choix judicieux. |
nounours78 |
Message édité par nounours78 le 11-01-2022 à 09:27:16 |
bouhi93 |
Message édité par bouhi93 le 11-01-2022 à 10:11:19 |
ramseys | Ca fait beaucoup d'informations d'un coup !
Message cité 1 fois Message édité par ramseys le 11-01-2022 à 12:31:00 |
wande |
|
bouhi93 |
|
ramseys | On est arrivés avec une idée globale de ce qu'on aimerait.
Message cité 1 fois Message édité par ramseys le 11-01-2022 à 14:54:22 |
Zoreil |
--------------- What the FUCK ? |
nucl3arfl0 Better Call Saul |
Publicité | Posté le ![]() ![]() |

| Sujets relatifs | |
|---|---|
| Avis à tous les connaisseurs de bons livres | rencontres sur le net ses plans foireux ses plans qui marchent |
| Plans de Secours / Plan de Continuité Informatique | [Nouvel An] Vos bons plans sur Paris |
| Arnaques aux célibataires (hors sites de rencontres) | Bons plans pour le Reveillon de la Saint Sylvestre |
| Les bons plans du 31 Décembre ! | |
| Plus de sujets relatifs à : Cuisinistes - les bons plans | les arnaques | |





