| |||||
FORUM HardWare.fr

Discussions

Vie pratique

• Aménagement intérieur & décoration • FP : boutiques & inspiration| Auteur | Sujet : • Aménagement intérieur & décoration • FP : boutiques & inspiration |
|---|---|
Publicité | Posté le 08-11-2025 à 13:47:20 ![]() ![]() |
jpegfr | A voir en effet, --------------- 100% des gagnants ont joué |
GladiaS | Hello,
--------------- --- Gladia --- |
jpegfr |
niku viaggiando controvento | il y a un topic aussi construire renover sa maison ils ont des bons conseils aussi |
Dolores | En tout cas, si tu peux revenir poster le plan final quand tu seras rendu là, ça m’intéresse. |
I care Homme volant |
--------------- I don't care. |
Ink87 22 ans sur HFR. :o |
--------------- XiJaro & Pitch -✨✴️Driftmoon - Golden Summer NOCTURNAL ....✨✴️ #vivelesdepressifsanonymes (et HFR :o) ........QUE LA VIE EST Contraignante... Mais belle... enfin vivement la fin |
Publicité | Posté le 09-11-2025 à 13:08:31 ![]() ![]() |
aleholi | Tu veux pas reposter le plan de l'étage ici ?
--------------- monocycle.info |
GladiaS |
--------------- --- Gladia --- |
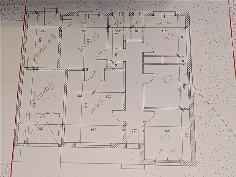
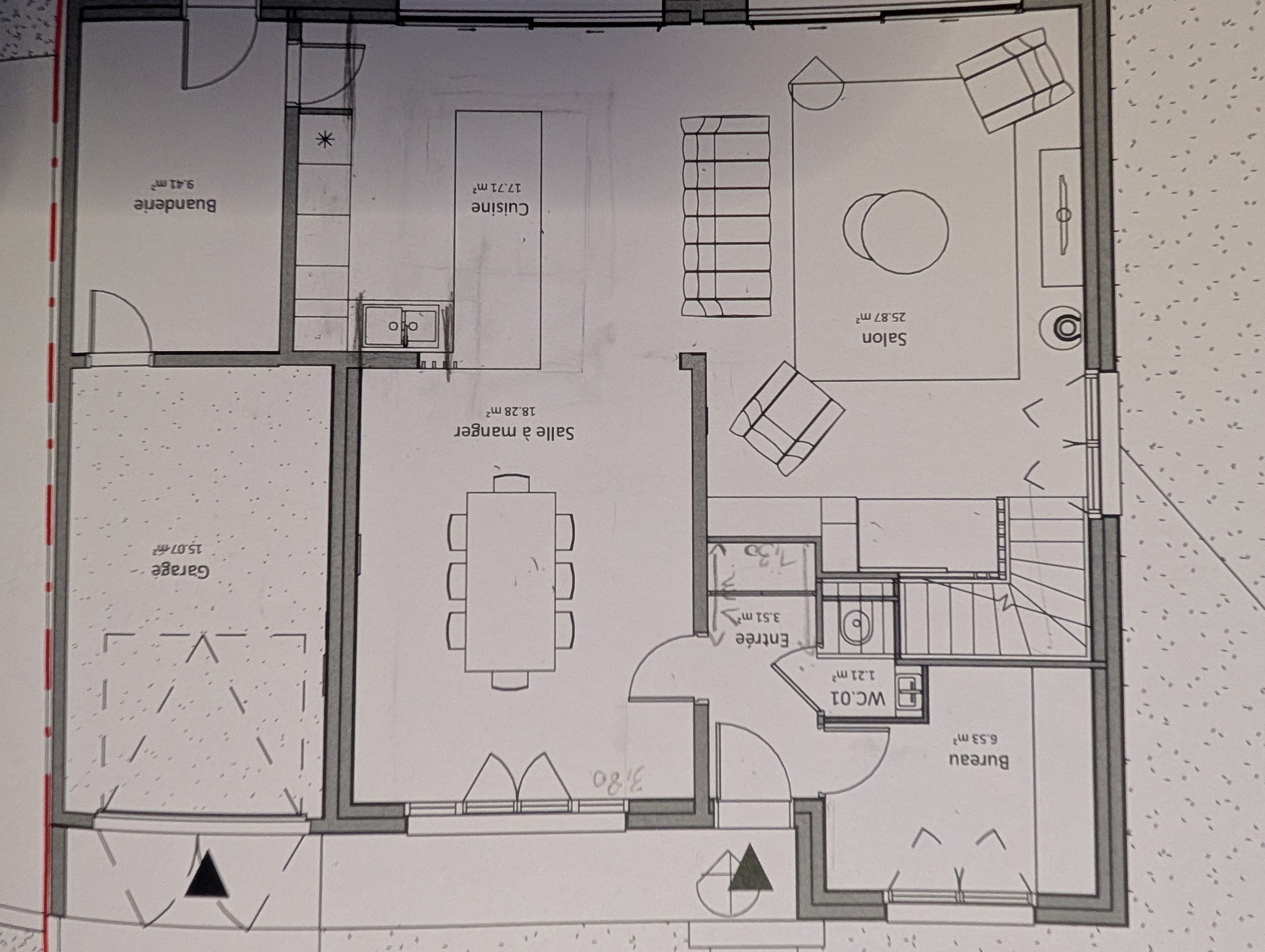
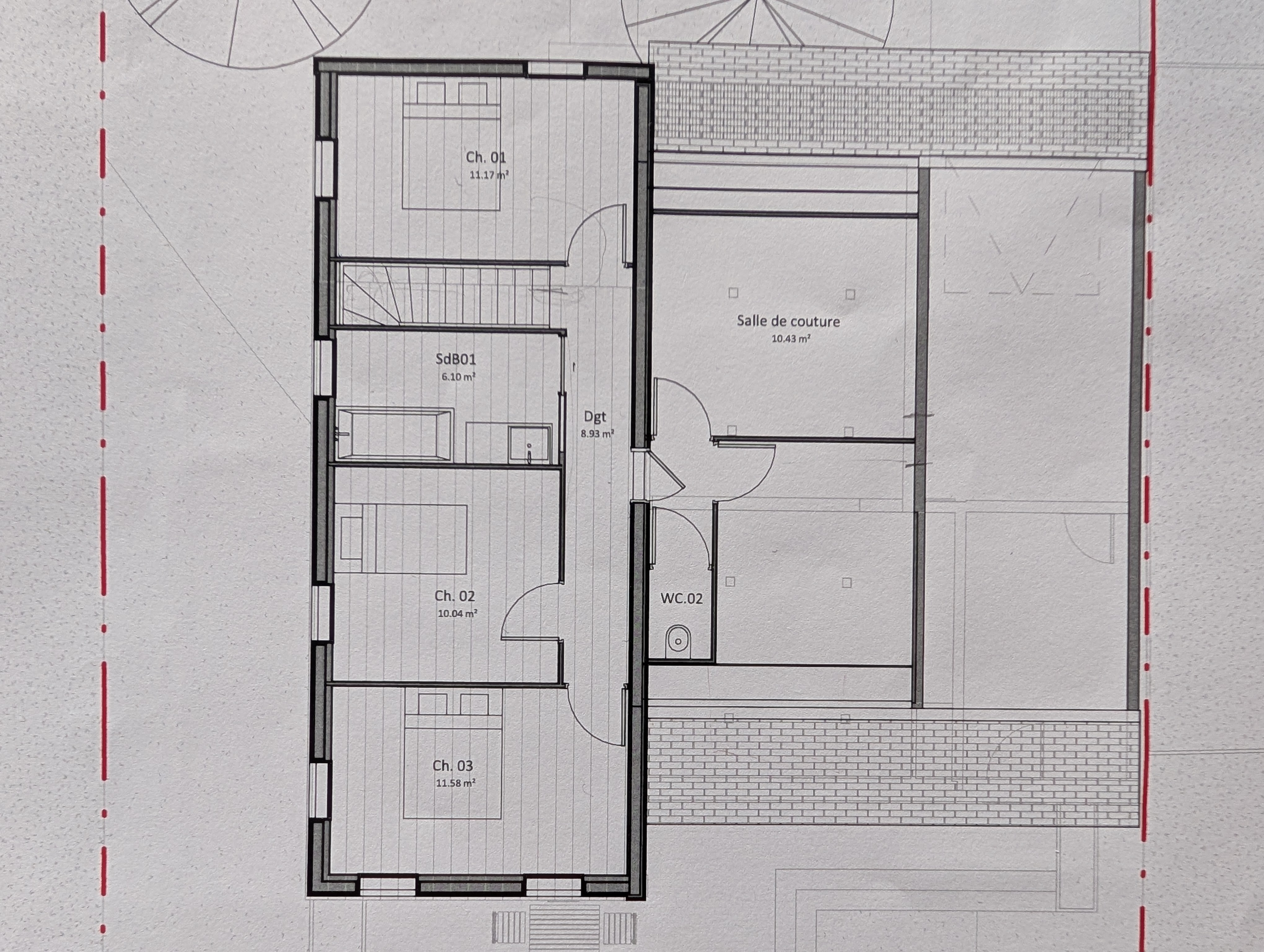
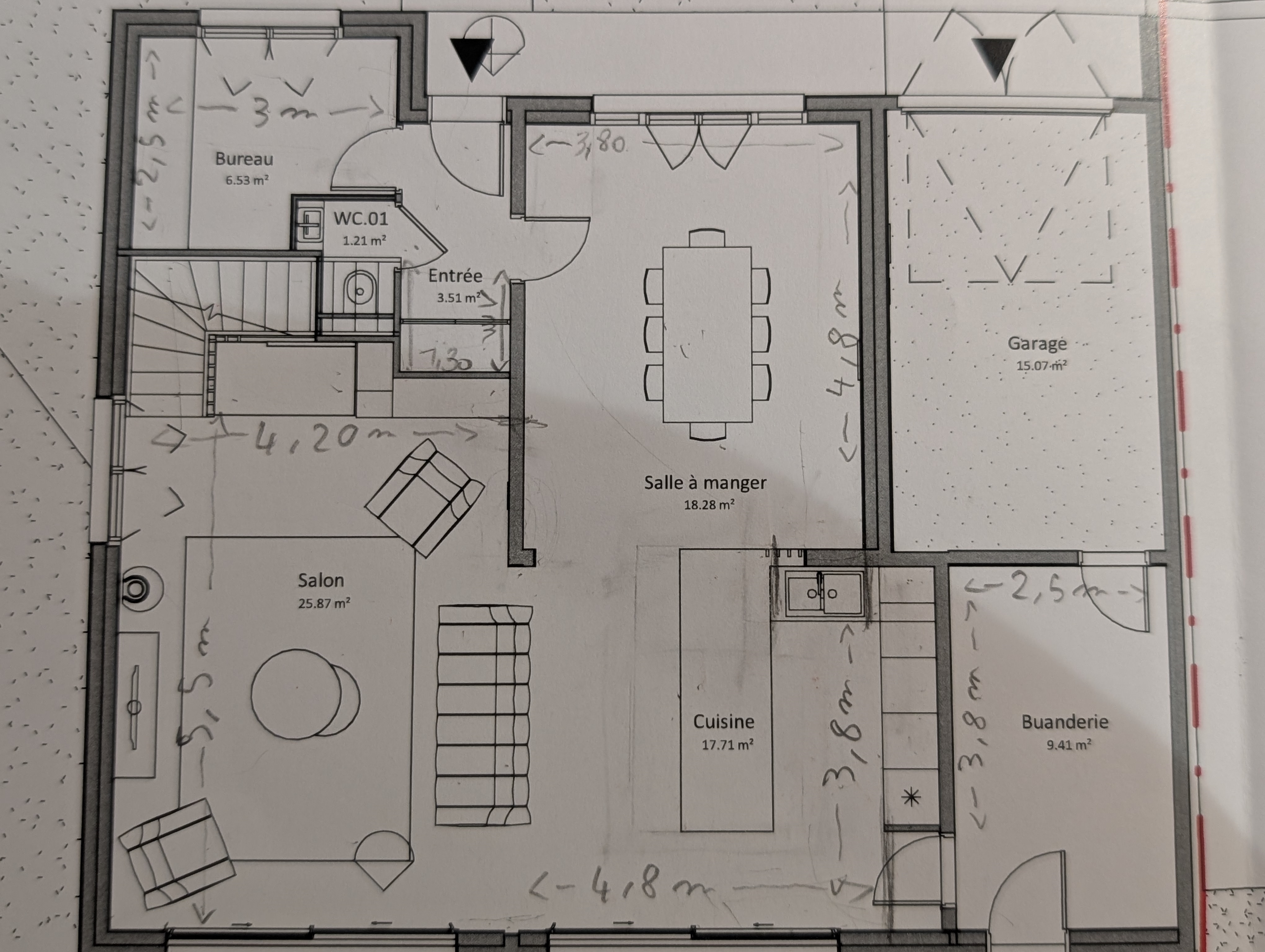
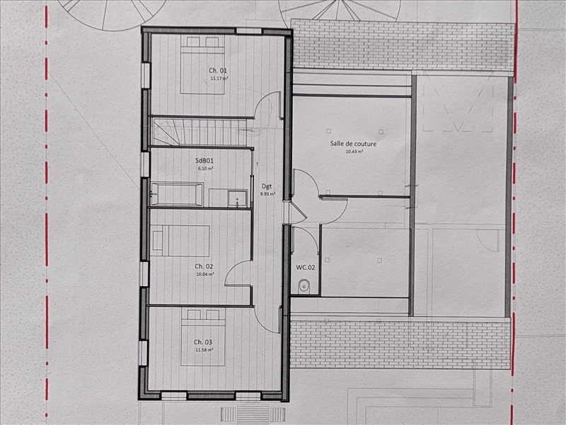
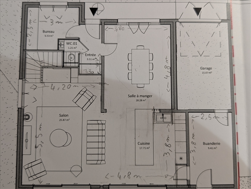
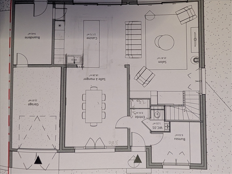
jpegfr | Alors merci a tous. Le plan de l'étage qui va être revu comme je le disais à côté.
L'orientation est plein sud au niveau cuisine et salon avec l'ouest aussi sur le côté droit du plan côté salon. L'escalier n'existe pas. On avait posé en contraintes, que l'on ne souhaitait pas un escalier directement dans l'entrée car on ne trouvait pas ça forcément chouette.apres car monter a l'étage nuit en passant par l'entrée où le sol est sale ça nous embête un peu . Mais peut-être qu'il y a une possibilité.
Message cité 1 fois Message édité par jpegfr le 09-11-2025 à 19:18:35 --------------- 100% des gagnants ont joué |
Batou | #lacaveabatou
Message cité 2 fois Message édité par Batou le 10-11-2025 à 00:25:58 |
Dolores |
crapulor | Moi j'aime bien qu'il y ai 3 chiottes dans un appart |
Batou |
Batou |
niku viaggiando controvento | immense l'appart |
outlaw_ |
|
Batou | Ce serait pour de l’appoint.
|
vigneuxamsterdam |
Message édité par vigneuxamsterdam le 10-11-2025 à 09:25:24 |
crapulor |
diamond2 ///Made in Tchernobyl |
--------------- HFR - We are accidents waiting to happen |
Oura_ Jean-Guillaume XXIII |
|
diamond2 ///Made in Tchernobyl |
--------------- HFR - We are accidents waiting to happen |
Dolores | Une porte à galandage pour des toilettes, au secours. |
I care Homme volant |
Message édité par I care le 10-11-2025 à 13:12:06 --------------- I don't care. |
Batou |
|
neo world |
|
Gars_lent Pas rapide | C'est de la brique et non ce n'est pas porteur --------------- Porte bien son pseudo. |
neo world | attention si la maison à plusieurs dizaines d'année et si le plancher au dessus est en bois il y a de bonne chance que ta cloison soit porteuse. Un bâtiment c'est plein de surprises |
Gars_lent Pas rapide | Non c'est bon c'est un plancher béton tout ce qu'il y a de plus classique
--------------- Porte bien son pseudo. |
GladiaS | Salut,
Message édité par GladiaS le 10-11-2025 à 16:57:39 --------------- --- Gladia --- |
gloinfred |
Message cité 1 fois Message édité par gloinfred le 10-11-2025 à 17:38:21 |
Ink87 22 ans sur HFR. :o |
--------------- XiJaro & Pitch -✨✴️Driftmoon - Golden Summer NOCTURNAL ....✨✴️ #vivelesdepressifsanonymes (et HFR :o) ........QUE LA VIE EST Contraignante... Mais belle... enfin vivement la fin |
Lugz • | Salut. Je cherche à habiller trois fenêtres (600mm x 1150mm) afin de préserver mon intimité tout en laissant passer la lumière.
|
Publicité | Posté le ![]() ![]() |

FORUM HardWare.fr

Discussions

Vie pratique

• Aménagement intérieur & décoration • FP : boutiques & inspiration| Sujets relatifs | |
|---|---|
| scenic 2 intérieur | Tube en cuivre ou laiton de 3mm de diamètre intérieur |
| honoraires / tarifs architecte d'interieur pour les plans 3D | Conditions vétustes de détention carcérale:l'exemple de Fleury-Mérogis |
| Four rouillé a l'intérieur | Mon parebrise est verglassé... à l'interieur |
| cherche tarifs archi/archi d'intérieur/décorateur | Isolation d un mur par l interieur |
| pkoi l'interieur d'un anus est noi' | Topik Aménagement-Focus Canape |
| Plus de sujets relatifs à : • Aménagement intérieur & décoration • FP : boutiques & inspiration | |


