| |||||
| Auteur | Sujet : Cuisinistes - les bons plans | les arnaques |
|---|---|
gloinfred | Reprise du message précédent :
|
Publicité | Posté le 22-03-2021 à 11:22:06 ![]() ![]() |
rody |
--------------- Mon feed ici Origin : Urbain_Lambert |
rody |
mrmaxpower |
mrmaxpower |
|
hub74 | Hello,
|
Ydalb In Crêpes n' Cidre I Trust! | Il a pas l'air très convivial cet ilot. Vous avez une autre table à manger ? Message édité par Ydalb le 23-03-2021 à 10:59:25 --------------- :o |
Publicité | Posté le 23-03-2021 à 11:03:14 ![]() ![]() |
ours02 | mais y'a pas de façades personnalisées chez Schmidt? --------------- Nouveaux albums! https://www.flickr.com/photos/12372 [...] 3080957133 |
Obelisque Farpaitement |
--------------- Quand l'appetit va, tout va ! |
hub74 | Merci pour vos retours, ça fait plaisir, on a mal a le tete et c'est chronophage Message cité 2 fois Message édité par hub74 le 23-03-2021 à 12:00:58 |
AuldPuck |
Message édité par AuldPuck le 23-03-2021 à 13:55:24 |
gloinfred |
|
gerardvin |
|
ours02 | mon MO acheté chez IKea (Mattradition) en décembre 2020 à claqué il y a 10-15 jours! --------------- Nouveaux albums! https://www.flickr.com/photos/12372 [...] 3080957133 |
niku viaggiando controvento | Yaahh |
poxy |
|
titebelette | Merci de ton retour. |
etoile64 Pas de bras, pas de 8a! | Joli projet!
--------------- « Moi, je suis un désespéré joyeux. J'ai cette mélancolie slave collée à l'âme. J'aime boire et pleurer. » |
titebelette | Merci de ton retour Etoile64, comme tu le dis compromis, toujours des compromis...
Message édité par titebelette le 26-03-2021 à 18:26:37 |
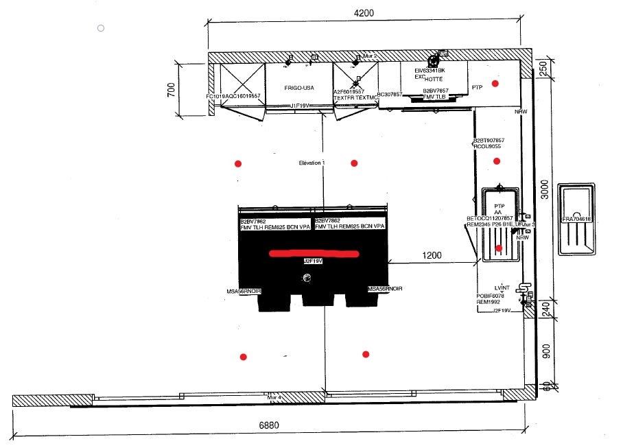
poxy | Pour les tiroirs à l'anglaise, ça va tant que tu n'y mets pas les choses que tu utilises plusieurs fois par jour. Les couverts du quotidien dans un tiroir à l'anglaise, no way. Par contre les épices qui servent 1 fois par semaine grand max, c'est bon – le tiroir à l'anglaise est bien plus esthétique et l'impact en terme de praticité est assez limité. On ne voit pas trop le reste de la pièce dans les visuels, mais tu peux potentiellement mettre des vrais tiroirs sur l'arrière du linéaire de l'ilot si ca ne se voit pas trop. |
Dephi |
--------------- |
gloinfred |
|
chocomog | |
poxy |
|
niku viaggiando controvento |
chocomog | On peut essayer de gratter encore un peu oui, il y a de toute façon des points à clarifier sur le devis.
|
etoile64 Pas de bras, pas de 8a! | Esthétiquement je trouve la Cuisinella assez moche (four pas aligné sur le plan de travail, plein de décrochés en profondeur?). --------------- « Moi, je suis un désespéré joyeux. J'ai cette mélancolie slave collée à l'âme. J'aime boire et pleurer. » |
chocomog | Je n'avais pas fait attention au four, effectivement !
|
etoile64 Pas de bras, pas de 8a! | Vérifie ce point là parce qu’au dessus de la colonne du four je trouve ça très mal intégré. --------------- « Moi, je suis un désespéré joyeux. J'ai cette mélancolie slave collée à l'âme. J'aime boire et pleurer. » |
chocomog | C'est bien la même profondeur (59.5) sur le devis |
onina |
Si les deux te plaisent, je prendrais Ikea en payant la pose pro (sauf si tu connais des pros). Ça sera toujours moins cher que Cuisinella, et au moins de même qualité (mon avis perso pour avoir connu une cuisine cuisinella c'est que ca sera de meilleure qualité, mais avis perso). Message édité par onina le 31-03-2021 à 22:35:52 |
chocomog | Oui, étant donné d'où on part (cuisine de 20 ans, 0 casseroliers, 50cm de pdt exploitable), on sera satisfait dans les 2 cas !
|
glabouni | Je préfère la version Cuisinella, les casseroliers sont quand même beaucoup plus pratiques en 120 qu'en 60. La plaque moins centrée sur le plan de travail te laisse plus de place pour cuisiner. |
LooKooM | Quelqu'un ici a testé la hotte suivante ?
|
vingt-et-un |
|
gloinfred |
Message cité 1 fois Message édité par gloinfred le 01-04-2021 à 07:59:41 |
Publicité | Posté le ![]() ![]() |

| Sujets relatifs | |
|---|---|
| Avis à tous les connaisseurs de bons livres | rencontres sur le net ses plans foireux ses plans qui marchent |
| Plans de Secours / Plan de Continuité Informatique | [Nouvel An] Vos bons plans sur Paris |
| Arnaques aux célibataires (hors sites de rencontres) | Bons plans pour le Reveillon de la Saint Sylvestre |
| Les bons plans du 31 Décembre ! | |
| Plus de sujets relatifs à : Cuisinistes - les bons plans | les arnaques | |





